Appartement Paris 5e - 2 chambres - 99m²
75005 - Paris 5e
DESCRIPTIF
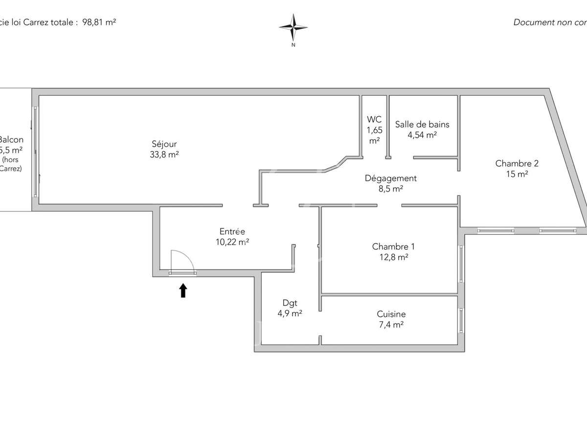
Au cœur du 5e arrondissement, proche des écoles, des commerces et de la place de l'Estrapade, cet appartement de 98,81m² loi Carrez, situé au sixième étage avec ascenseur offre un beau potentiel de rénovation.
Son agencement agréable comprend une entrée avec des rangements, unséjour lumineux ouvert sur un grand balcon avec une vue dégagée sur le Panthéon, une cuisine séparée, deux chambres, une salle de douche avec toilettes, ainsi que des toilettes séparées.Ce bien saura vous séduire par ses vues, son calme et sa lumière.
- Vue dégagée sur le Panthéon depuis le balcon spacieux.
- Calme et luminosité au sein d'un quartier animé.
Paris 5e - LHOMOND / ESTRAPADE - Appartement à ven
Les informations sur les risques auxquels ce bien est exposé sont disponibles sur le site Géorisques :
Réf : 3618MARDEB/2052CHM - Date : 15/04/2026
LES ATOUTS
CARACTÉRISTIQUES
DIAGNOSTICS ENERGETIQUES
LOCALISATION
NOUS CONTACTER
DEMANDE D'INFORMATIONS
Demander plus d’informations à JUNOT 6E.




















