Appartement Paris 3e - 1 chambre - 56m²
75003 - Paris 3e
DESCRIPTIF
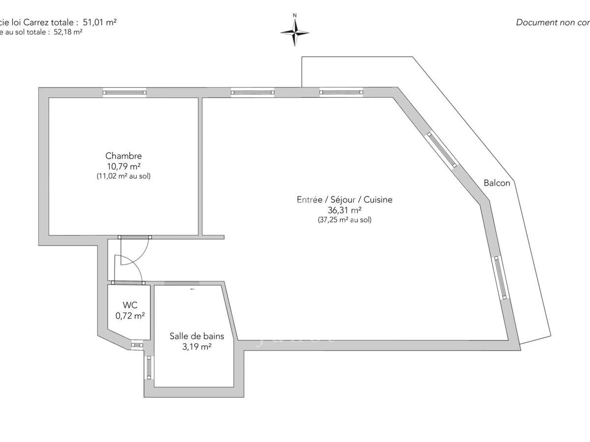
Situé au deuxième étage d'un immeuble ancien, un appartement d'angle intégralement rénové avec de beaux matériaux d'une surface de 51,01m² loi Carrez (56,09m² au sol).
Il se compose d'une entrée, d'une belle pièce de vie de 37m² très lumineuse grâce à ses quatre fenêtres menant à un balcon filant de 3,91m², d'une cuisine aménagée et équipée, d'une chambre avec grand dressing, d'une salle de douche et de toilettes séparés.
Le charme de l'ancien a été préservé (parquet, moulures, cheminée).
Climatisation réversible chaud/froid.
Isolation phonique et thermique.
Double vitrage.
Ecran géant rétractable avec rétroprojecteur.
- Rénovation de qualité avec matériaux haut de gamme
- Balcon filant offrant luminosité et charme extérieur
Paris 3e - SAINT-GILLES - Appartement à vendre - 2
Les informations sur les risques auxquels ce bien est exposé sont disponibles sur le site Géorisques :
Réf : 3475BREHUC - Date : 18/04/2026
LES ATOUTS
CARACTÉRISTIQUES
DIAGNOSTICS ENERGETIQUES
LOCALISATION
NOUS CONTACTER
DEMANDE D'INFORMATIONS
Demander plus d’informations à JUNOT MARAIS.
















