Appartement Paris 1er - 2 chambres - 111m²
Ce bien d'exception n'est plus disponible sur BellesPierres.com
Consultez nos autres recherches proches
Appartement Paris 1er - 2 chambres - 111m²
Ce bien d'exception n'est plus disponible sur BellesPierres.com
Consultez nos autres recherches proches
Appartement Paris 1er - 2 chambres - 111m²
75001 - Paris 1er
DESCRIPTIF
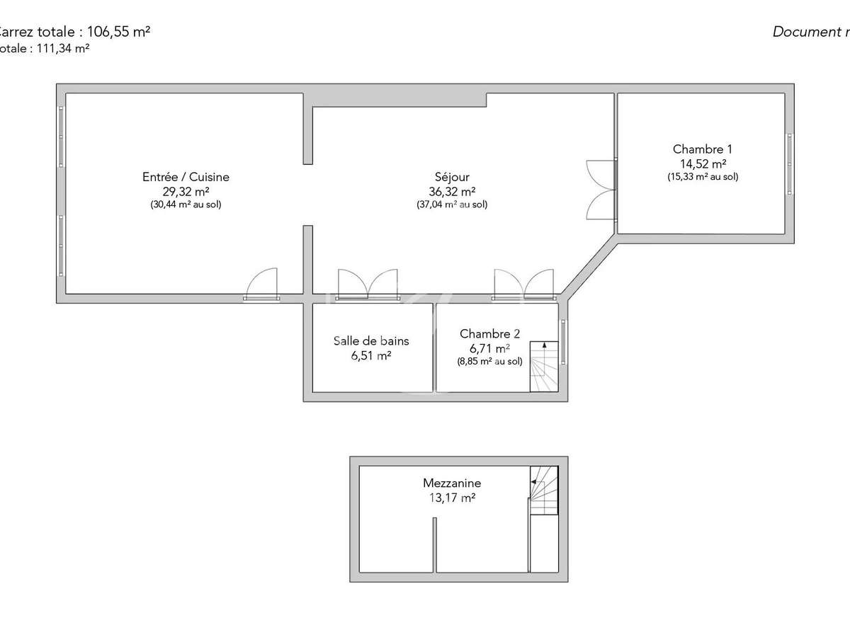
À deux pas du jardin du Palais Royal.Au troisième étage d'un bel immeuble ancien, cet appartement de quatre pièces, d'une surface de 106,55m² loi Carrez, bénéficie de beaux volumes.
Il comporte un grand double séjour, une salle à manger avec cuisine ouverte, deux chambres en suite, un dressing, une salle de bains et des toilettes séparées.Une cave complète de bien.Ascenseur voté et payé.EXCLUSIVITÉ.
- Emplacement privilégié à deux pas du jardin du Palais Royal.
- Beaux volumes avec grand double séjour et salle à manger spacieuse.
Paris 1er - PALAIS ROYAL - Appartement à vendre -
Les informations sur les risques auxquels ce bien est exposé sont disponibles sur le site Géorisques :
Réf : 709JFPILL - Date : 09/03/2026
LES ATOUTS
CARACTÉRISTIQUES
DIAGNOSTICS ENERGETIQUES
NOUS CONTACTER
DEMANDE D'INFORMATIONS
Demander plus d’informations à JUNOT FINE PROPERTIES.


