Appartement Paris 18e - 2 chambres - 78m²
75018 - Paris 18e
DESCRIPTIF
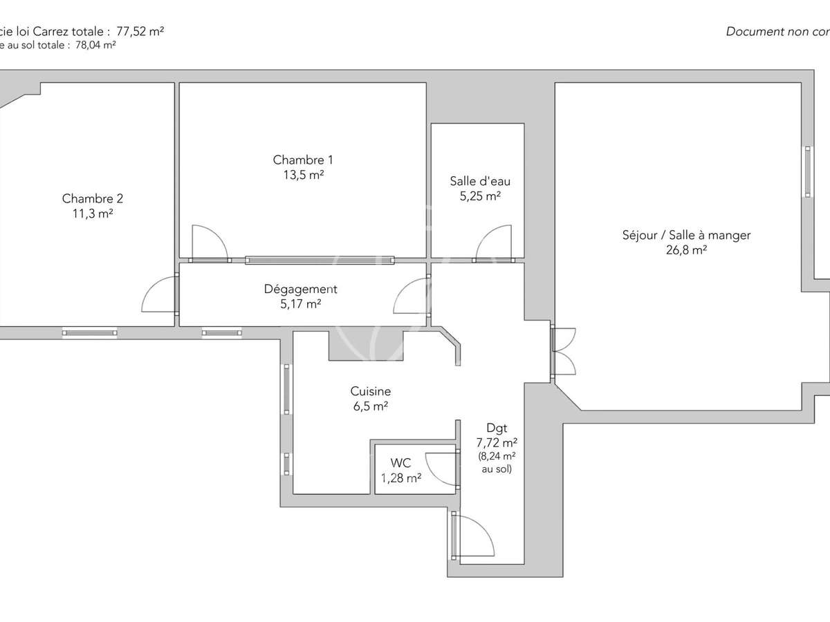
Au troisième étage par ascenseur d'un très bel immeuble en pierre et brique, superbe appartement familial de 77,52m² loi Carre exposé plein ouest.Le plan compact comporte une petite entrée, une cuisine équipée, un grand séjour double, deux chambres au calme coté cour, une salle de douche et des toilettes séparées.
Cet appartement à la décoration soignée offre de beaux volumes.Au sein d'un environnement calme, à proximité immédiate des commerces et du métro Guy Môquet.
Une cave complète cette offre.
Libération des lieux le 30 septembre 2026.EXCLUSIVITÉ.
- Immeuble en pierre et brique pour un charme et une solidité indéniables.
- Exposition plein ouest assurant une belle luminosité tout au long de la journée.
Paris 18e - RUE D'OSLO - Appartement - 77,50m² Car
Les informations sur les risques auxquels ce bien est exposé sont disponibles sur le site Géorisques :
Réf : 5800JUNDEL - Date : 18/04/2026
LES ATOUTS
CARACTÉRISTIQUES
DIAGNOSTICS ENERGETIQUES
LOCALISATION
NOUS CONTACTER
DEMANDE D'INFORMATIONS
Demander plus d’informations à JUNOT MONTMARTRE.





















