Appartement Paris 18e - 2 chambres - 95m²
75018 - Paris 18e
DESCRIPTIF
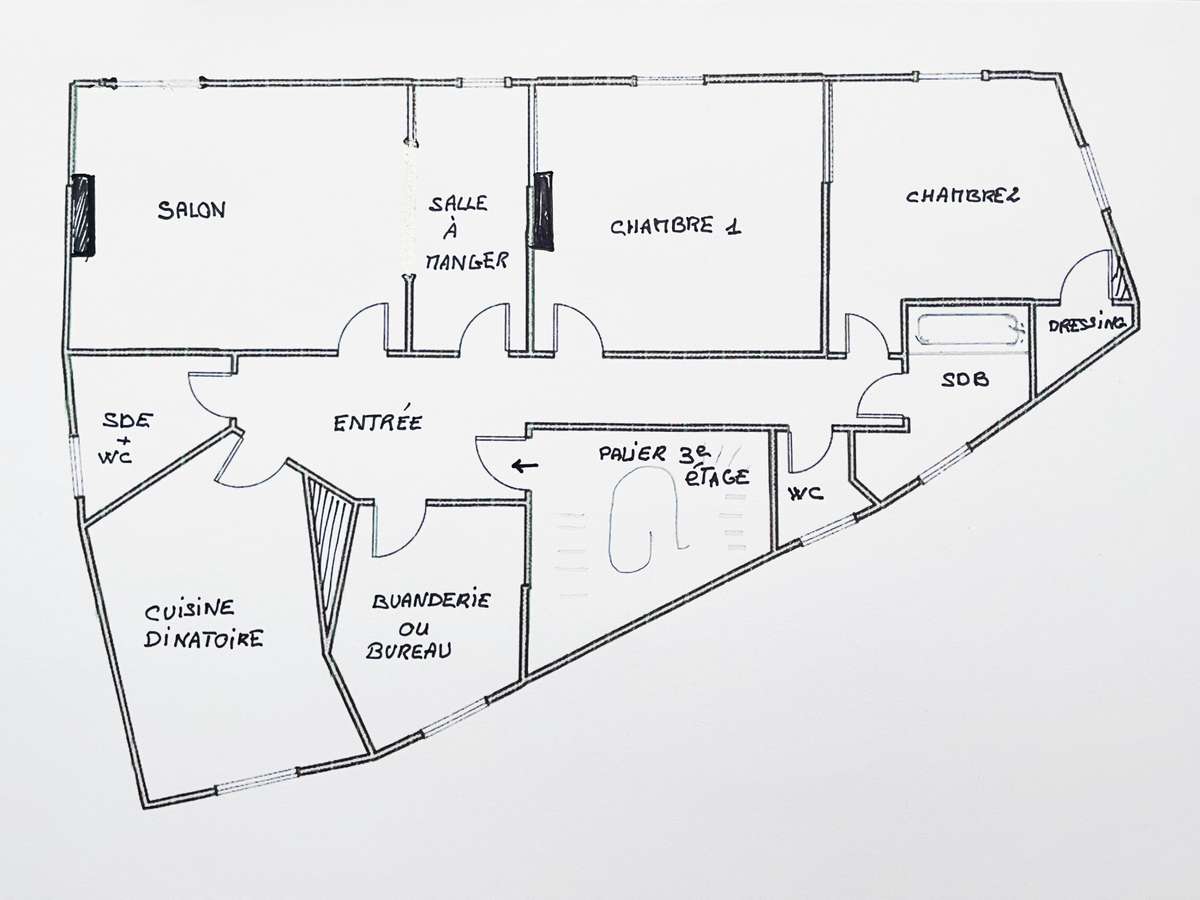
Dans un immeuble haussmannien de la rue Caulaincourt, seul au 3ème étage, Véronique Ducros, votre consultante Expertimo, propose à la vente ce 4-pièces 95,27m2 (Loi Carrez) en triple exposition, doté de parquets, moulures et cheminées, actuellement configuré comme suit : entrée, salon prolongé d'une salle-à-manger, 2 grandes chambres dont une avec un petit dressing et bénéficiant d'une double exposition avec une vue parisienne unique sur le cimetière de Montmartre, Grande cuisine dinatoire, Bureau, chambre d'enfant ou grand dressing au choix (cuisine à l'origine), salle de bains avec emplacement machine à laver ; WC séparé ; salle d'eau avec WC.
Double-vitrage partout.
3 chambres possible (devis à disposition).
L'appartement est vendu avec une cave.
Copropriété composée majoritairement de propriétaires, syndic pro, pas de procédures en cours, ravalement façades en cours DPE : D Taxe foncière : 1460€ Charges trimestrielles : 710 € + 34 ALUR Cette annonce vous est proposée par DUCROS-AGEORGES Véronique - EI - N°RSAC: 512 063 801, Enregistré à Greffe du tribunal de commerce de Paris - Annonce rédigée et publiée par un Agent Mandataire -
- Emplacement privilégié dans un quartier animé, à proximité des commerces et transports.
- Lumineux et spacieux, d'une surface de 95,27 m2 avec triple exposition.
Charme et convivialité entre 18e et 9e arrondissements
Les informations sur les risques auxquels ce bien est exposé sont disponibles sur le site Géorisques :
Réf : 255666_100037 - Date : 03/03/2026
LES ATOUTS
CARACTÉRISTIQUES
COPROPRIÉTÉ
DIAGNOSTICS ENERGETIQUES
LOCALISATION
NOUS CONTACTER
DEMANDE D'INFORMATIONS
Demander plus d’informations à RESEAU EXPERTIMO.













