Appartement Paris 18e - 2 chambres - 81m²
Ce bien d'exception n'est plus disponible sur BellesPierres.com
Consultez nos autres recherches proches
Appartement Paris 18e - 2 chambres - 81m²
Ce bien d'exception n'est plus disponible sur BellesPierres.com
Consultez nos autres recherches proches
Appartement Paris 18e - 2 chambres - 81m²
75018 - Paris 18e
DESCRIPTIF
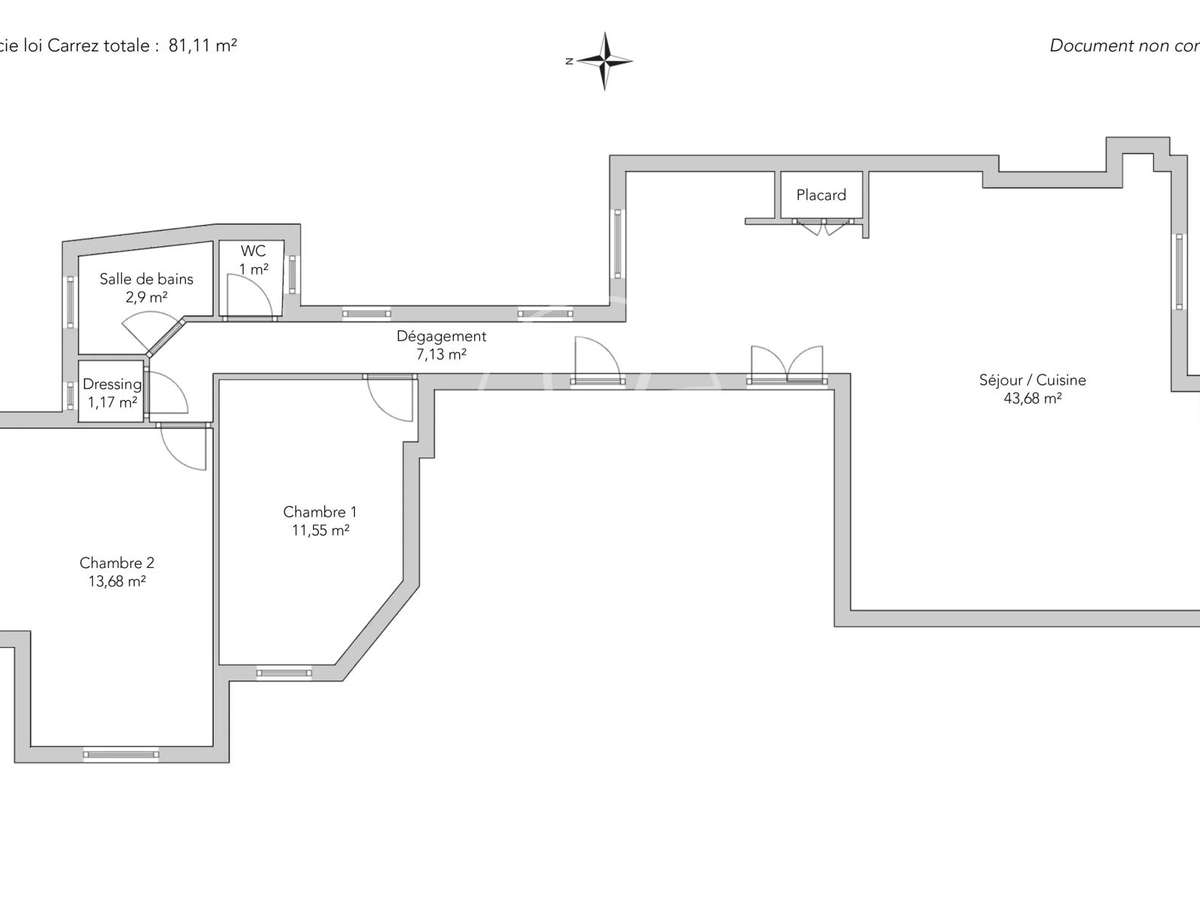
À la lisière des 17e et 9e arrondissements, au troisième étage par ascenseur d’un très bel immeuble ancien en pierre de taille et briques, cet appartement traversant de 81,11m² loi Carrez, bénéficie de vues dégagées et d'une belle exposition sud dans la pièce de vie baignée de lumière.Très lumineux, il comporte une entrée, un vaste double séjour avec cuisine ouverte, deux chambres au calme sur cour et des toilettes séparées.Ce bien qui a conservé le charme de l’ancien (parquet, moulures et cheminée) saura vous séduire par son ensoleillement, ses vues dégagées et son calme.
Une cave complète cette offre.Copropriété bien entretenue avec gardienne.
- Lumineux : Vue dégagée et exposition sud dans le séjour.
- Calme : Chambres au calme sur cour verdoyante.
Paris 18e - GRANDES CARRIÈRES / RUE CAVALLOTTI - A
Les informations sur les risques auxquels ce bien est exposé sont disponibles sur le site Géorisques :
Réf : 3405ABBRAV18 - Date : 06/02/2026
LES ATOUTS
CARACTÉRISTIQUES
DIAGNOSTICS ENERGETIQUES
NOUS CONTACTER
DEMANDE D'INFORMATIONS
Demander plus d’informations à JUNOT ABBESSES.


