Appartement Paris 17e - 4 chambres - 145m²
75017 - Paris 17e
DESCRIPTIF
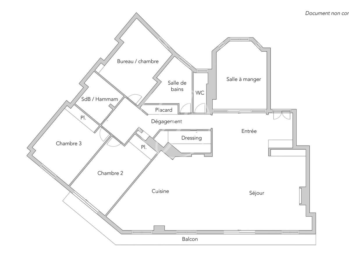
Boulevard Pereire, à proximité des transports, des commodités et des écoles privées prestigieuses.Dans un bel immeuble Art déco, seul au sixième étage, superbe appartement de 145,54m² loi Carrez par ascenseur.Le plan agréable comporte une belle entrée, un double séjour baigné de lumière avec cheminée, exposé sud et ouvrant sur un balcon avec vue dégagée et cuisine ouverte, une salle à manger, deux agréables chambres avec balcon (trois/quatre possibles), une salle de bains, un hammam, un grand dressing et des toilettes indépendantes.Possibilité de faire quatre chambres.
Une cave complète ce bien.Vous serez séduit par les très beaux volumes, la qualité des rénovations, les nombreux rangements, les extérieurs et les vues panoramiques sans vis-à-vis.EXCLUSIVITÉ.
- Emplacement privilégié à proximité des transports et écoles prestigieuses.
- Superbe luminosité grâce à un double séjour exposé sud avec balcon.
Paris 17e - PEREIRE - Appartement à vendre - 5 piè
Les informations sur les risques auxquels ce bien est exposé sont disponibles sur le site Géorisques :
Réf : 2889WAGBER4CH - Date : 18/04/2026
LES ATOUTS
CARACTÉRISTIQUES
DIAGNOSTICS ENERGETIQUES
LOCALISATION
NOUS CONTACTER
DEMANDE D'INFORMATIONS
Demander plus d’informations à JUNOT WAGRAM PEREIRE.



















