Appartement Paris 17e - 4 chambres - 128m²
75017 - Paris 17e
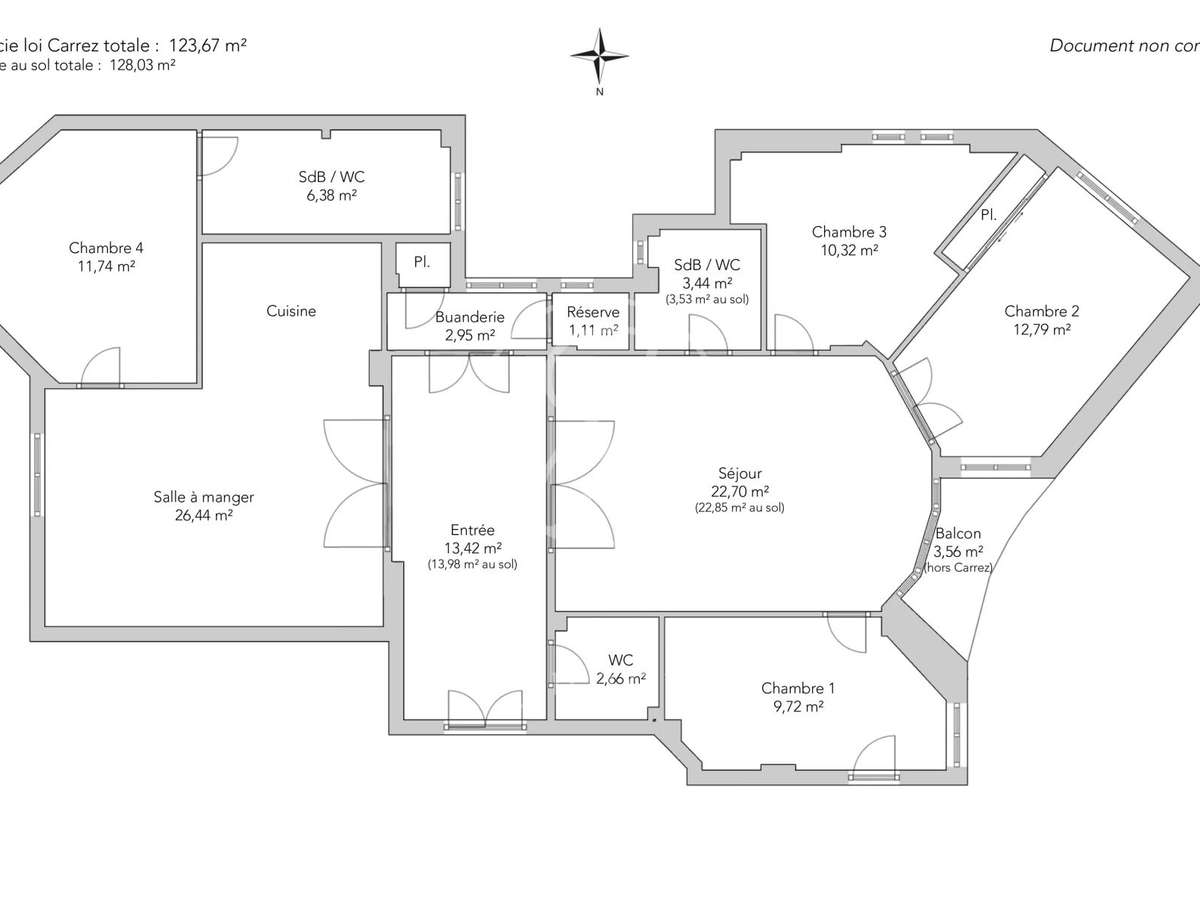
DESCRIPTIF
À deux pas de la place Pereire, au troisième étage avec ascenseur d’un bel immeuble Art Déco parfaitement entretenu avec gardien, bel appartement familial de 123,67 m² loi Carrez.Traversant et baigné de lumière grâce à son exposition est/ouest, cet appartement en bon état bénéficie d’un plan compact en étoile particulièrement fonctionnel.Il se compose d’une entrée desservant un salon ouvrant sur un balcon, d’une salle à manger avec cuisine ouverte, de quatre chambres, dont une suite parentale avec salle de bains attenante d’une seconde salle de bains avec toilettes, ainsi que de toilettes séparées.
Buanderie et nombreux rangements.
Une cave complète ce bien.À proximité immédiate de l’école Sainte-Ursule, des commerces et des transports.
- Idéal pour une famille avec quatre chambres spacieuses.
- Bénéfice d'un balcon offrant un espace extérieur agréable.
Paris 17e - PEREIRE - Appartement à vendre - 6 pi
Les informations sur les risques auxquels ce bien est exposé sont disponibles sur le site Géorisques :
Réf : 2978MONRAS - Date : 19/03/2026
LES ATOUTS
CARACTÉRISTIQUES
DIAGNOSTICS ENERGETIQUES
LOCALISATION
NOUS CONTACTER
DEMANDE D'INFORMATIONS
Demander plus d’informations à JUNOT MONCEAU.



















