Appartement Paris 16e - 3 chambres - 140m²
75016 - Paris 16e
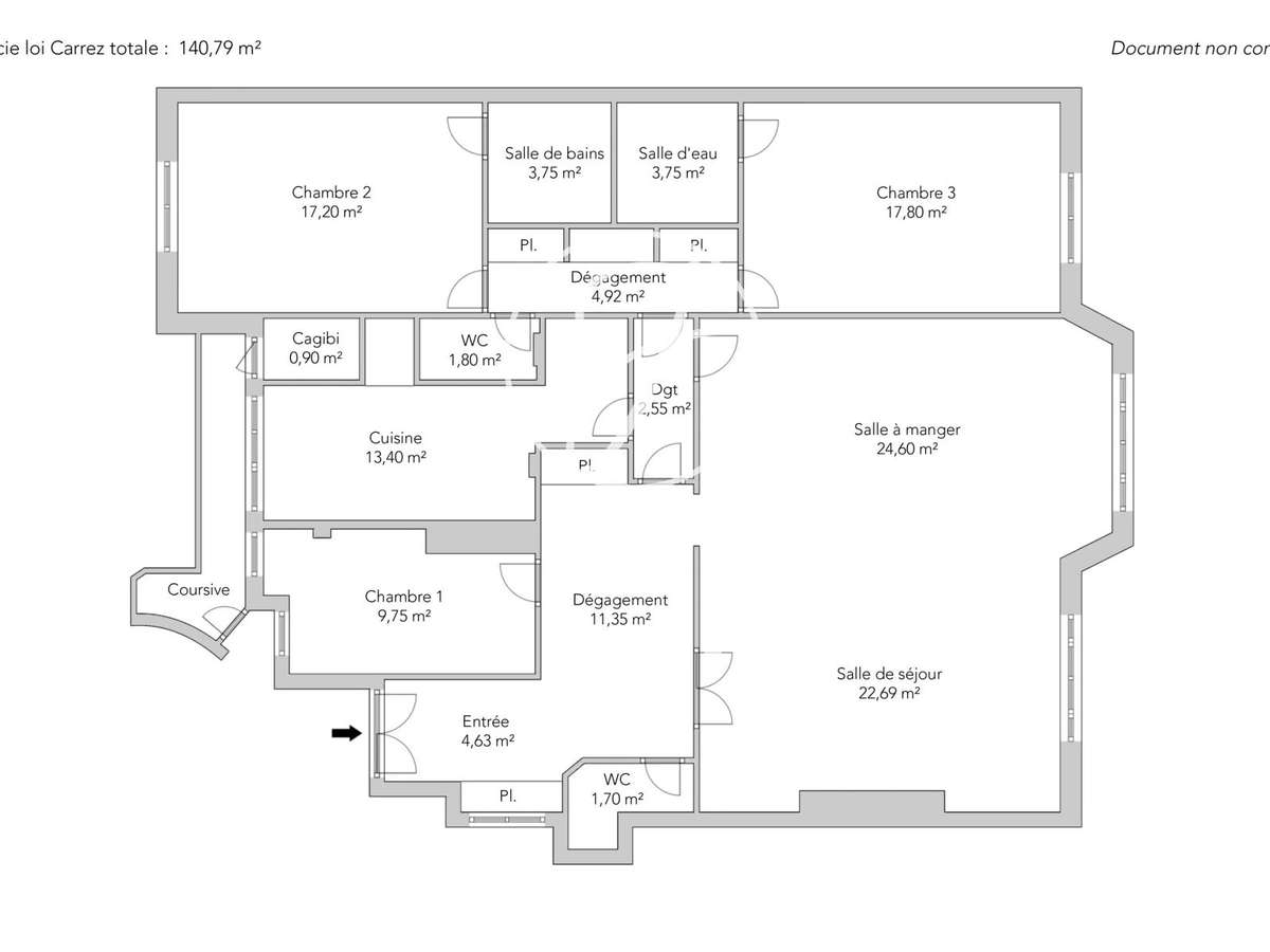
DESCRIPTIF
Au sein d’une très belle copropriété de standing, au troisième étage par ascenseur, charmant appartement familial et de réception de 140,79m² loi Carrez.Il comporte une galerie d’entrée avec dressing, une double réception baignée de lumière, exposée sud-ouest, qui bénéficie de belles ouvertures et d’une agréable vue dégagée.
La cuisine dînatoire, entièrement équipée, ouvre sur un balcon.L’espace nuit comprend une suite parentale avec salle de douche, deux autres chambres qui donnent sur une cour arborée, une salle de bains, deux cabinets de toilette ainsi que de nombreux rangements et dressings sur mesure.Calme, traversant et lumineux, cet appartement présente un format familial idéal.Une grande cave complète ce bien.EXCLUSIVITÉ
- Copropriété de standing avec ascenseur et salle de réception
- Belle luminosité grâce à une exposition sud-ouest
Paris 16e - MOLITOR / PORTE D'AUTEUIL - Appartemen
Les informations sur les risques auxquels ce bien est exposé sont disponibles sur le site Géorisques :
Réf : 5909JASJOU - Date : 29/04/2026
LES ATOUTS
CARACTÉRISTIQUES
DIAGNOSTICS ENERGETIQUES
LOCALISATION
NOUS CONTACTER
DEMANDE D'INFORMATIONS
Demander plus d’informations à JUNOT JASMIN AUTEUIL.




















