Appartement Paris 16e - 2 chambres - 94m²
75016 - Paris 16e
DESCRIPTIF
À proximité immédiate de l'église d’Auteuil.
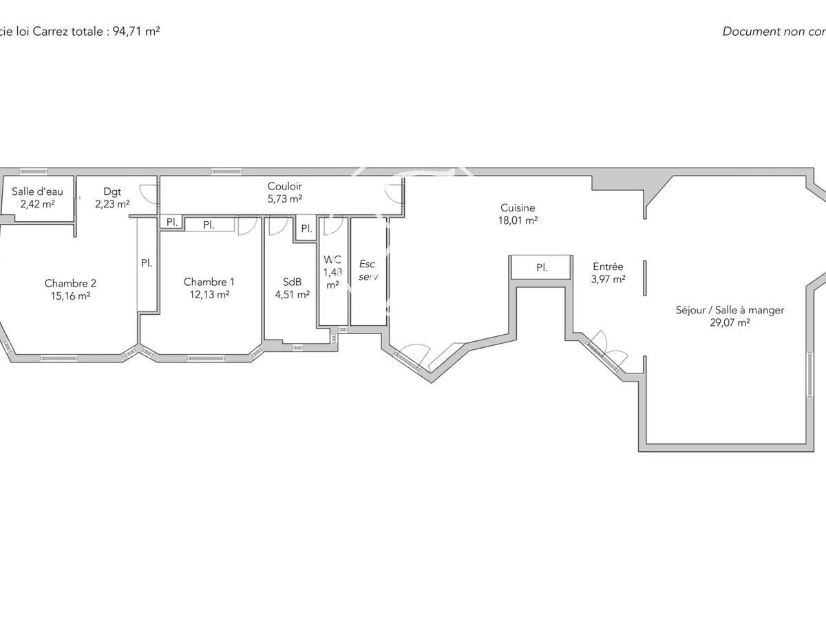
Niché au sein d’une impasse confidentielle qui offre un calme absolu tout en restant au pied des commerces, cet appartement traversant de 94,71m² loi Carrez se situe au troisième étage d’un élégant immeuble ancien avec ascenseur.Entièrement rénové avec goût, il propose des prestations de standing et conjugue avec finesse le cachet de l’ancien à des finitions contemporaines haut de gamme.L’agencement comporte une entrée, un double séjour baigné de lumière, une chambre en suite avec sa salle de douche, une seconde chambre, une salle de bains avec toilettes, des toilettes séparées et une cuisine semi-ouverte parfaitement intégrée.Une cave vient compléter ce bien.Gardien à demeure.EXCLUSIVITÉ
- Calme absolu : située dans une impasse confidentielle, loin de l'agitation de la ville.
- Rénovation de qualité : mélange subtil de charme ancien et de finitions contemporaines haut de gamme.
Paris 16e - AUTEUIL - Appartement à vendre - 4 piè
Les informations sur les risques auxquels ce bien est exposé sont disponibles sur le site Géorisques :
Réf : 5885JASHEN - Date : 25/04/2026
LES ATOUTS
CARACTÉRISTIQUES
DIAGNOSTICS ENERGETIQUES
LOCALISATION
NOUS CONTACTER
DEMANDE D'INFORMATIONS
Demander plus d’informations à JUNOT JASMIN AUTEUIL.
















