Appartement Paris 16e - 7 chambres - 300m²
75016 - Paris 16e
DESCRIPTIF
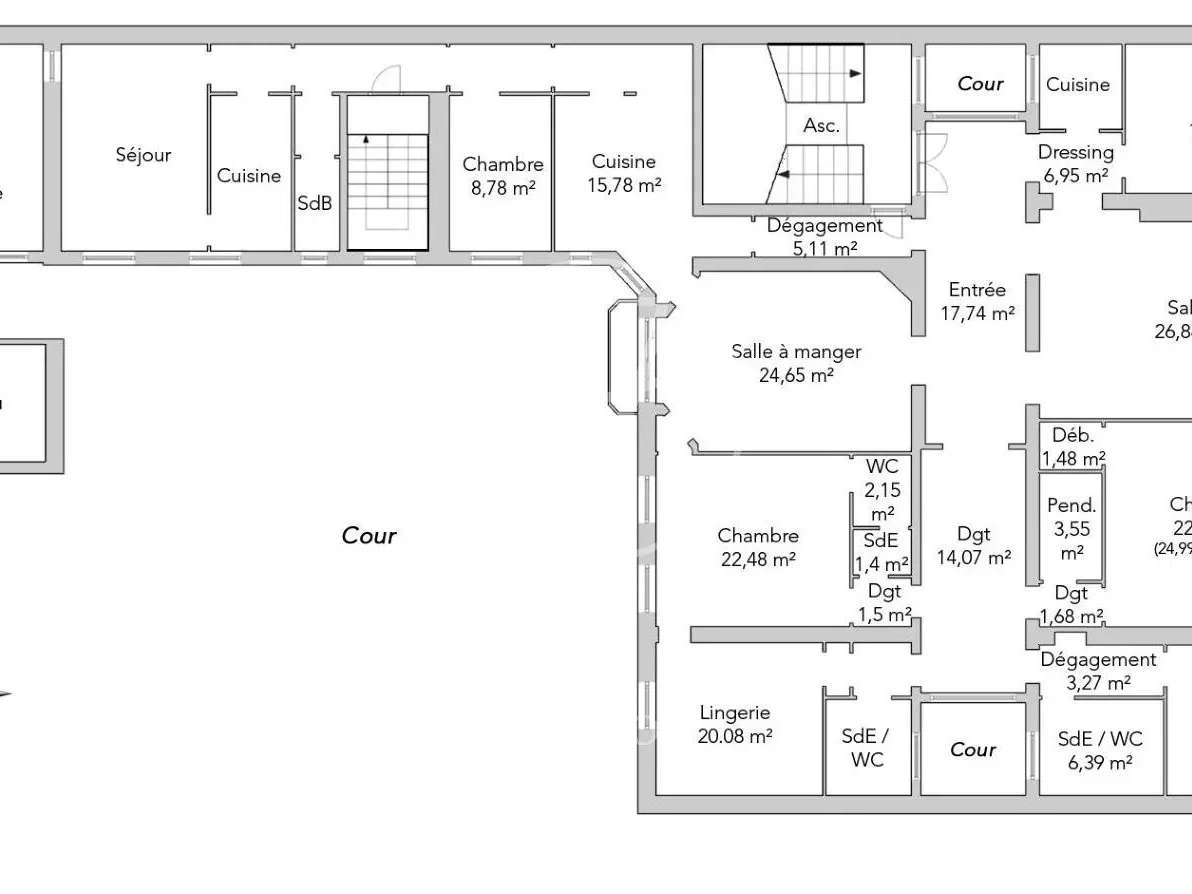
Au sein d'un sublime immeuble bâti en 1880 avec gardien, au deuxième étage par ascenseur, seul sur le palier, cet appartement de réception de 291,29m² loi Carrez s'adapte également à une vie de famille dans un cadre exceptionnel.Traversant, il bénéficie de superbes volumes grâce à3,60m de hauteur sous plafond et a conservé le charme de l'ancien: boiseries, moulures, cheminées et un parquet d'origine.Son plan en étoile comporte une première galerie d'entrée desservant une réception sur rue exposée ouest, une salle à manger avec verrière, une cuisine dînatoire mitoyenne et un bureau.La seconde partie du bien est composée de quatre belles chambres pouvant avoir chacune leur point d’eau et toilettes.
A la suite de la cuisine se raccorde une cinquième chambre (de service) avec salle de douche et toilette.Un deux pièces de 50m² est proposé avec l'appartement sur le même palier.Une rénovation est à prévoir.
Elle permettra de rendre toute sa splendeur à ce lieu au cachet incontestable.Possibilité d’acquérir en option un box en rez-de-chaussée ainsi qu’une place de parking pour 70.000€ et 50.000€ respectivement.Trois cave viennent compléter cette offre rare.
- Immeuble historique avec charme d'époque et rénovation à prévoir.
- Volumes exceptionnels avec 3,60m de hauteur sous plafond.
Paris 16e - KLEBER - Appartement à vendre - 8 pièc
Les informations sur les risques auxquels ce bien est exposé sont disponibles sur le site Géorisques :
Réf : 1905VHUVID - Date : 18/04/2026
LES ATOUTS
CARACTÉRISTIQUES
DIAGNOSTICS ENERGETIQUES
LOCALISATION
NOUS CONTACTER
DEMANDE D'INFORMATIONS
Demander plus d’informations à JUNOT VICTOR HUGO.



























