Appartement Paris 16e - 3 chambres - 89m²
75016 - Paris 16e
DESCRIPTIF
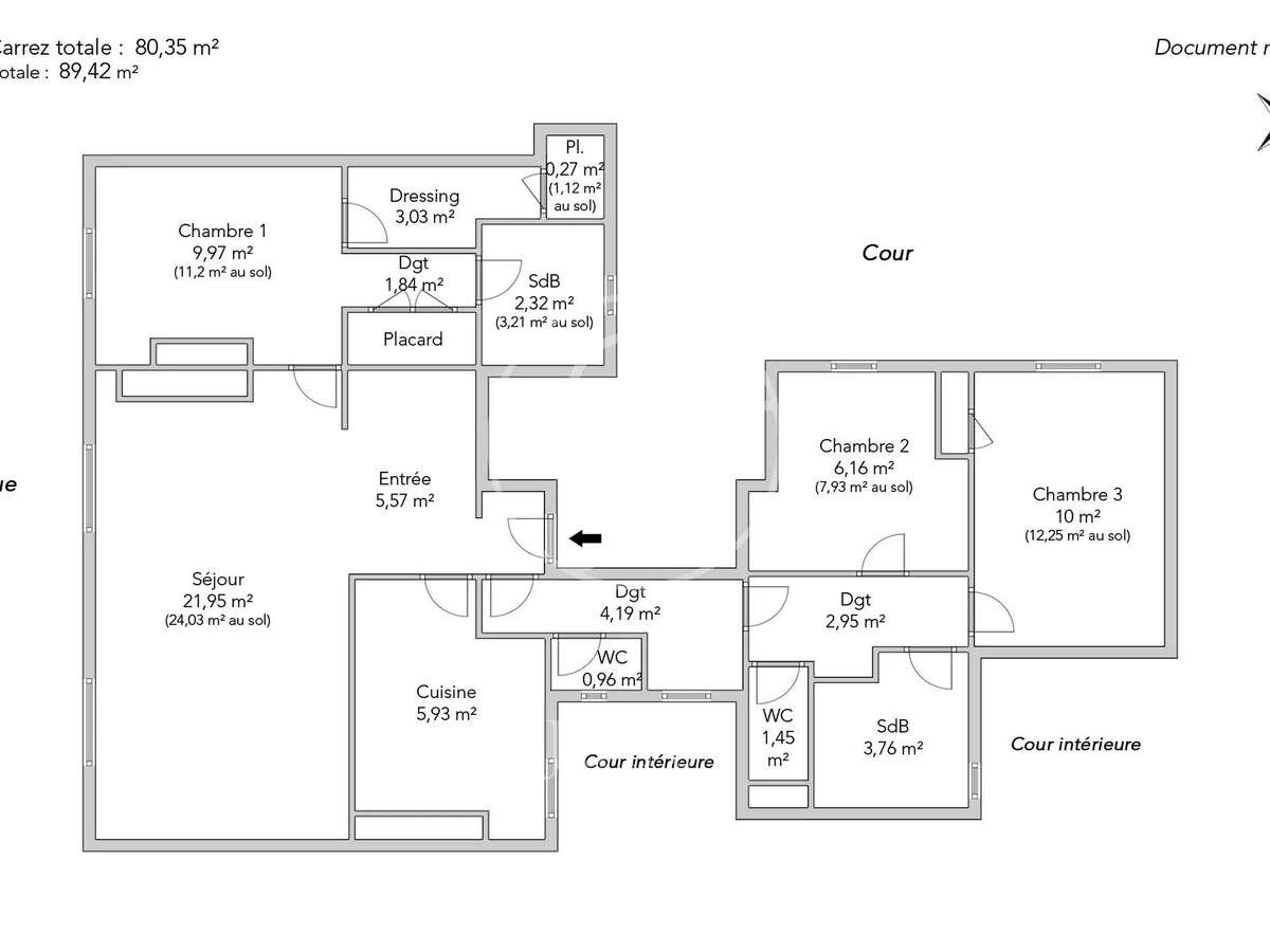
À deux pas de l’avenue Victor Hugo et de la place de Mexico, au dernier étage par ascenseur d’un immeuble de 1880, seul à l’étage, charmant appartement ensoleillé de 80,35m² Carrez et 89,42m² au sol, à rénover.Son plan bénéficie d’une triple exposition et comprend une entrée, une double réception sur rue exposée sud-ouest avec vue sur les toits et le ciel, une cuisine indépendante équipée, trois chambres dont l’une en suite avec dressing et salle de bains, une seconde salle de bains et deux toilettes indépendantes.Une cave complète cette offre rare, sectorisée Janson de Sailly.
- Emplacement privilégié à proximité de l'avenue Victor Hugo et des commodités.
- Dernier étage offrant une vue dégagée et une belle luminosité.
Paris 16e - LONGCHAMP / VICTOR HUGO - Appartement
Les informations sur les risques auxquels ce bien est exposé sont disponibles sur le site Géorisques :
Réf : 1732VHUDEM - Date : 18/04/2026
LES ATOUTS
CARACTÉRISTIQUES
DIAGNOSTICS ENERGETIQUES
LOCALISATION
NOUS CONTACTER
DEMANDE D'INFORMATIONS
Demander plus d’informations à JUNOT VICTOR HUGO.






















