Appartement Paris 16e - 4 chambres - 196m²
75016 - Paris 16e
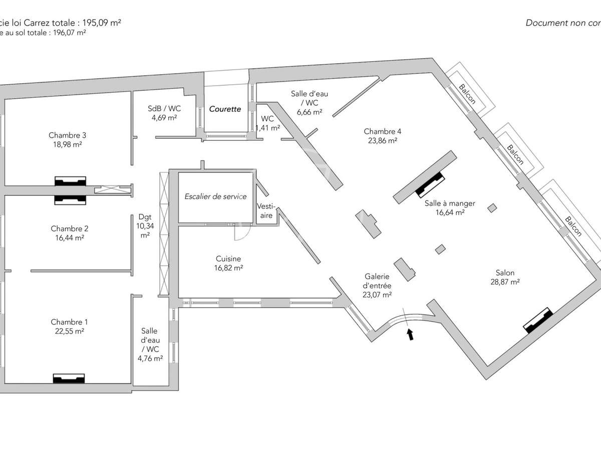
DESCRIPTIF
Au deuxième étage avec ascenseur d’un magnifique immeuble de type haussmannien en pierre de taille datant de 1892, somptueux appartement familial et de réception de 195,09m² loi Carrez.
Traversant et baigné de lumière, il bénéficie de balcons exposés ouest.Cet appartement offre tout le charme de l’ancien parisien avec ses beaux volumes, sa hauteur sous plafond de 3,73 mètres, son parquet en point de Hongrie, ses cinq cheminées en marbre d’époque et ses moulures élégantes.Calme, il comprend une galerie d’entrée, une double réception et une vaste cuisine dînatoire.Côté nuit, il compte quatre chambres ; une suite parentale avec une grande salle de douche, ainsi que trois autres chambres sur jardin exposées plein est.Une salle de bains, une seconde salle de douche et quatre toilettes, dont des toilettes invités, complètent l'ensemble.L'appartement offre également un vestiaire d’entrée et de nombreux rangements sur mesure.Les fenêtres en double vitrage assurent un confort optimal.Ce bien se distingue par une très bonne classification énergétique : DPE D.Une grande cave carrelée et sécurisée par porte blindée accompagne ce bien.Une chambre de service de 7,17m² loi Carrez située au cinquième étage de l’immeuble, avec aperçu tour Eiffel et douche, est proposée en supplément.Bien rare et très recherché dans le quartier, au pied des commerces et des transports.
- Grand appartement de 195,09m² avec balcon exposé ouest.
- Emplacement de choix à Paris 16e, proche commerces et transports.
Paris 16e - MOZART / JASMIN - Appartement à vendre
Les informations sur les risques auxquels ce bien est exposé sont disponibles sur le site Géorisques :
Réf : 5859JASJOU - Date : 15/04/2026
LES ATOUTS
CARACTÉRISTIQUES
DIAGNOSTICS ENERGETIQUES
LOCALISATION
NOUS CONTACTER
DEMANDE D'INFORMATIONS
Demander plus d’informations à JUNOT JASMIN AUTEUIL.




























