Appartement Paris 16e - 4 chambres - 156m²
75016 - Paris 16e
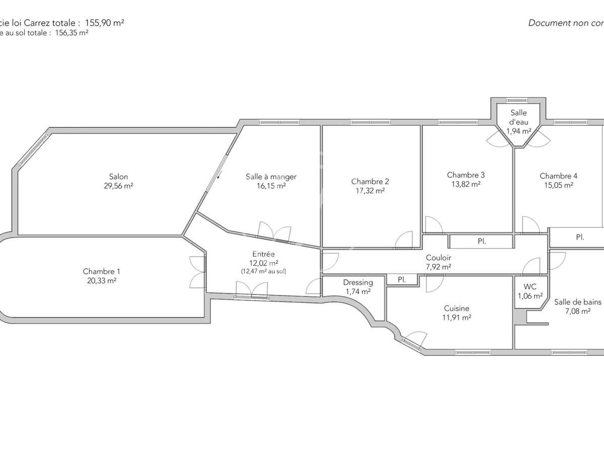
DESCRIPTIF
Dans un immeuble en pierre de taille de 1908, au sein d'une copropriété bien entretenue, élégant appartement familial et de réception traversant de 155,90m² loi Carrez.Lumineux, il comporte une entrée qui dessert un séjour d'angle et une salle à manger exposés sud-est, un petit salon aménagée en chambre, une cuisine dinatoire, trois autres chambres, une salle de douche, une salle de bains avec douche et toilettes, des toilettes séparées et de nombreux rangements.Il offre tout le charme de l'ancien avec ses volumes généreux, sa belle hauteur sous plafond, son parquet en point de Hongrie, ses moulures et les très belles cheminées en marbre fonctionnelles dans chaque pièce.Idéal pour une famille.À proximité immédiate des commerces, transports et écoles.Deux caves complètent ce bien.
Gardien à demeure.Sectorisation Jean-Baptiste Say.
- Espaces lumineux grâce à une double exposition sud-est.
- Charme de l'ancien avec moulures et cheminées en marbre.
Paris 16e - ÉGLISE D'AUTEUIL - Appartement à vendr
Les informations sur les risques auxquels ce bien est exposé sont disponibles sur le site Géorisques :
Réf : 5861JASVAN - Date : 03/04/2026
LES ATOUTS
CARACTÉRISTIQUES
DIAGNOSTICS ENERGETIQUES
LOCALISATION
NOUS CONTACTER
DEMANDE D'INFORMATIONS
Demander plus d’informations à JUNOT JASMIN AUTEUIL.


























