Appartement Paris 16e - 4 chambres - 340m²
75016 - Paris 16e
DESCRIPTIF
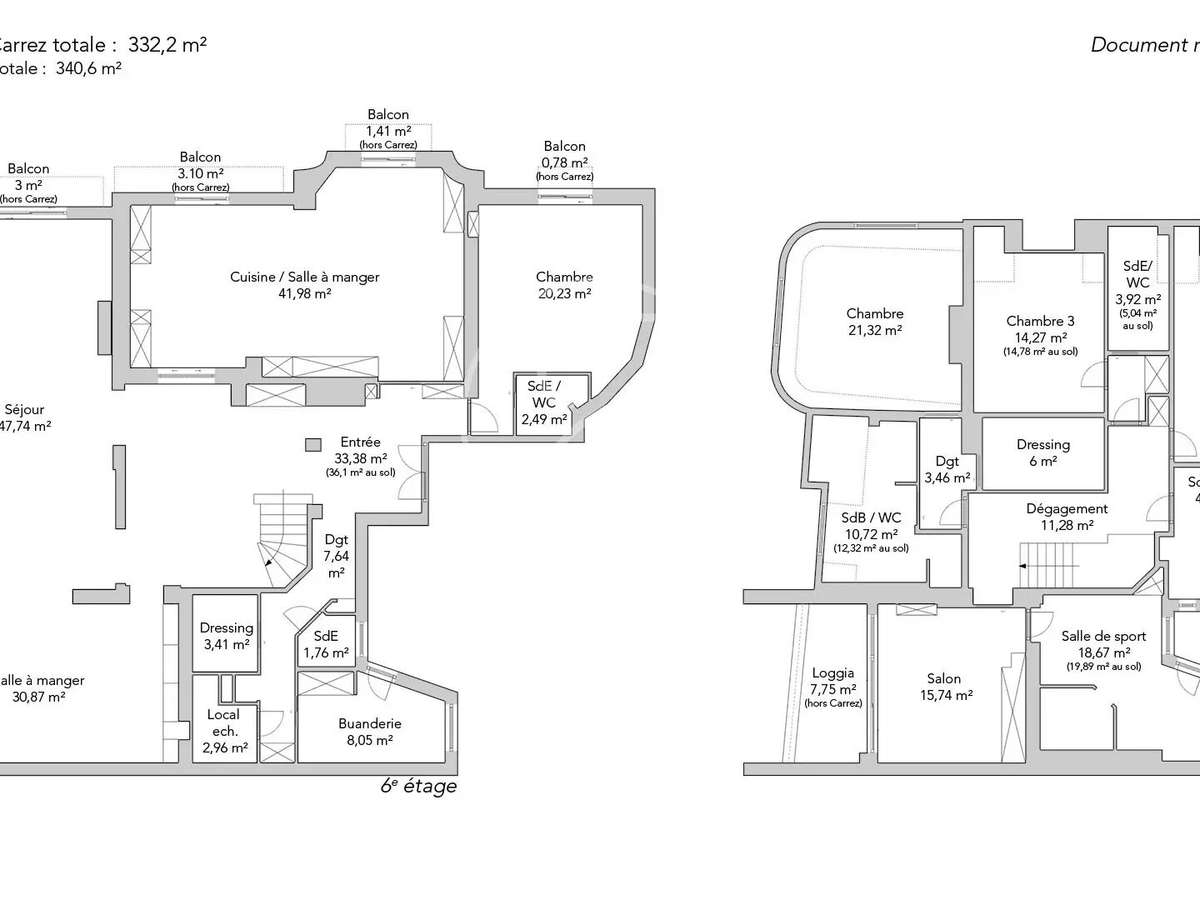
Proche de la place du Trocadéro et des commerces de la rue de Passy, au calme d’une rue recherchée, superbe duplex de 330m² niché aux sixième et septième étages d’un bel immeuble en pierre de taille.Entièrement repensé et rénové avec des matériaux de qualité, cet appartement lumineux séduit par ses volumes généreux et ses prestations haut de gamme.Il comprend, au premier niveau, une entrée, un vaste double séjour prolongé par une salle à manger, une belle cuisine dinatoire avec îlot central, ainsi qu’une chambre avec sa salle de bains.
De larges balcons bordent cet ensemble élégant.
Buanderie et toilettes invités.L’étage supérieur offre une suite parentale avec dressings et salle de bains, deux chambres supplémentaires, chacune avec salle de bains, un grand bureau et une salle de sport avec balcon, pouvant aisément être aménagée en cinquième chambre ou suite.Climatisation.Une cave complète ce bien rare.
- Emplacement privilégié près du Trocadéro et des commerces.
- Prestations haut de gamme et rénovation de qualité inférieure.
Paris 16e - TROCADÉRO / PASSY - Duplex à vendre -
Les informations sur les risques auxquels ce bien est exposé sont disponibles sur le site Géorisques :
Réf : 2184PASCAS - Date : 28/11/2025
LES ATOUTS
CARACTÉRISTIQUES
DIAGNOSTICS ENERGETIQUES
LOCALISATION
NOUS CONTACTER
DEMANDE D'INFORMATIONS
Demander plus d’informations à JUNOT PASSY- LA MUETTE.






























