Appartement Paris 16e - 3 chambres - 112m²
75016 - Paris 16e
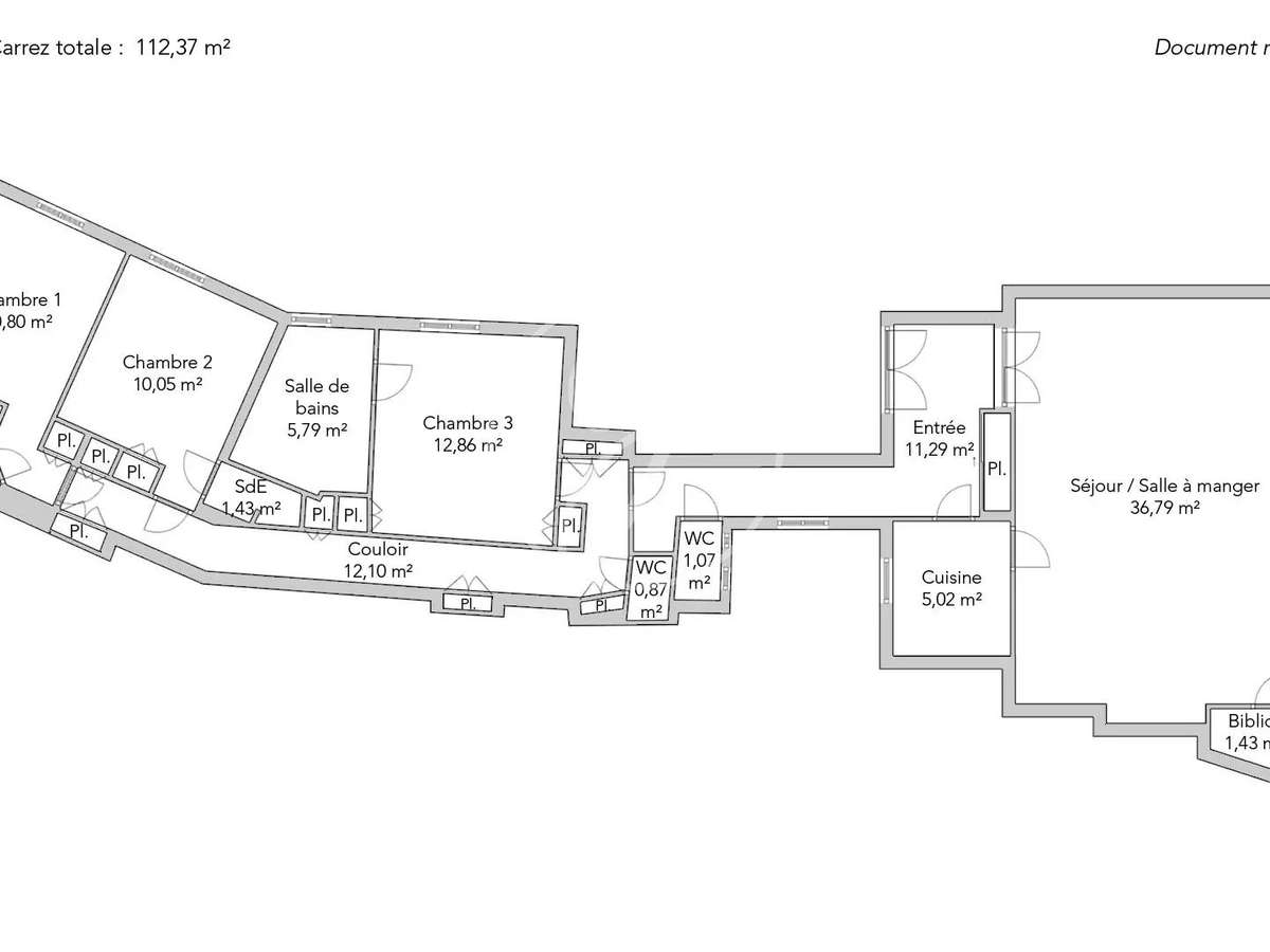
DESCRIPTIF
Situé au deuxième étage d’un immeuble en pierre de taille avec ascenseur, élégant appartement familial de 112,37m² loi Carrez.Il se compose d'une entrée menant à un vaste double séjour, prolongé par un balcon filant qui offre une agréable ouverture sur l’extérieur.
La cuisineséparée complète l’espace de réception.
Côté nuit, trois chambres, chacune avec son point d’eau.
Trois cabinets de toilette.Cave.
Gardien.Idéalement situé dans le quartier recherché d’Auteuil, à proximité immédiate des commerces, des établissements scolaires réputés et des transports.
- Emplacement privilégié dans le quartier recherché d’Auteuil.
- Double séjour spacieux avec balcon filant et vue dégagée.
Paris 16e - AUTEUIL - Appartement à vendre - 5 piè
Les informations sur les risques auxquels ce bien est exposé sont disponibles sur le site Géorisques :
Réf : 2170PASCAS - Date : 28/11/2025
LES ATOUTS
CARACTÉRISTIQUES
DIAGNOSTICS ENERGETIQUES
LOCALISATION
NOUS CONTACTER
DEMANDE D'INFORMATIONS
Demander plus d’informations à JUNOT PASSY- LA MUETTE.




