Appartement Paris 15e - 4 chambres - 122m²
75015 - Paris 15e
DESCRIPTIF
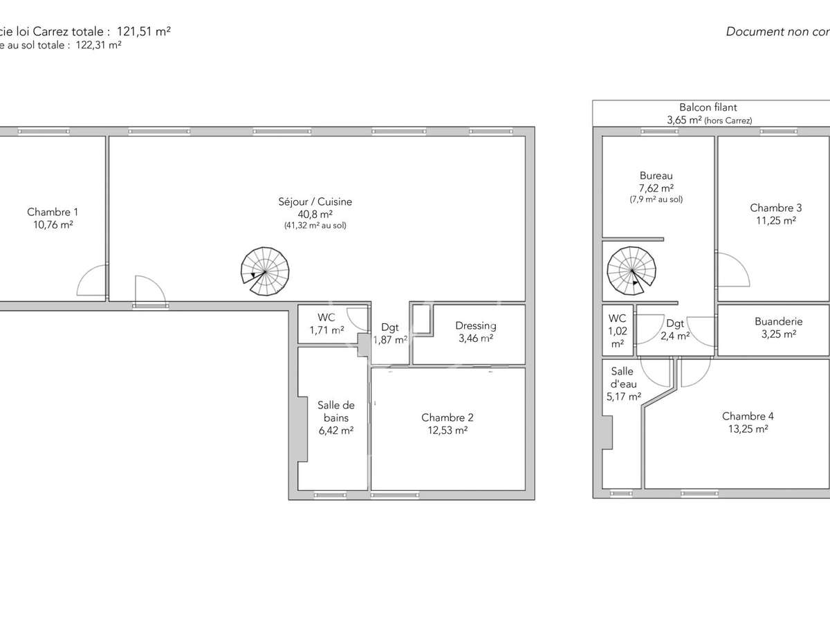
À proximité immédiate des commerces de la rue de Vaugirard, aux deux derniers étages par ascenseur d’un immeuble en pierre de taille, cet appartement en duplex de 121,51m² loi Carrez et 122,31m² au sol propose un plan particulièrement équilibré et optimisé pour une configuration familiale confortable.Au quatrième étage, l’entrée ouvre sur une spacieuse pièce de vie d’environ 40m² qui comprend une double réception et une cuisine ouverte.
Cet espace convivial bénéficie d'une belle luminosité grâce à son exposition sud-ouest.
Ce niveau comprend également une première chambre sur rue ainsi qu’une suite parentale sur cour, dotée d’un dressing et d’une salle de bains complète avec baignoire et douche.
Des toilettes séparées complètent l’ensemble.Un escalier intérieur conduit à l’étage supérieur bordé par un balcon filant.
On accède à un espace bureau, deux chambres supplémentaires, une salle de douche, des toilettes indépendantes ainsi qu’une buanderie.Calme, lumineux et parfaitement distribué, cet appartement offre un cadre de vie familial recherché au cœur du 15e arrondissement.Trois caves complètent ce bien.EXCLUSIVITÉ.
- Agréable luminosité grâce à l'exposition sud-ouest.
- Configuration familiale optimisée au cœur de Paris 15e.
Paris 15e - VAUGIRARD / VOLONTAIRES - Duplex à ven
Les informations sur les risques auxquels ce bien est exposé sont disponibles sur le site Géorisques :
Réf : 1998CHMHEN - Date : 18/04/2026
LES ATOUTS
CARACTÉRISTIQUES
DIAGNOSTICS ENERGETIQUES
LOCALISATION
NOUS CONTACTER
DEMANDE D'INFORMATIONS
Demander plus d’informations à JUNOT 6E.



















