Appartement Paris 15e - 4 chambres - 140m²
75015 - Paris 15e
DESCRIPTIF
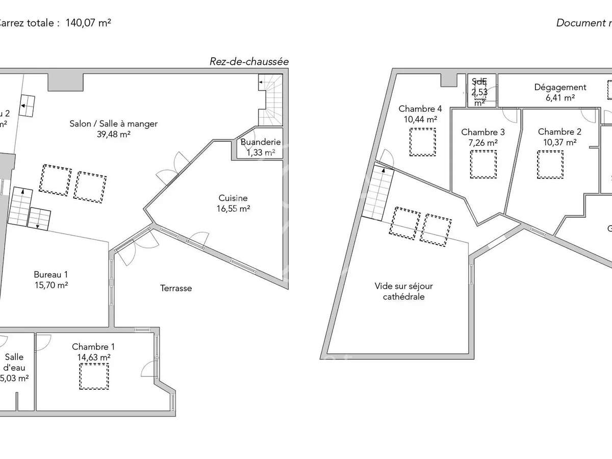
Au cœur du quartier Commerce et à quelques mètres du métro, cette superbe maison d'architecte de 140,07m² loi Carrez, répartie sur deux niveaux, se situe dans un ancien local industriel qui saura vous séduire par la générosité de ses volumes, sa terrasse et son jardin.
Au calme absolu, la maison comprend, au rez-de-jardin, un agréable salon aux belles proportions, une cuisine indépendante dînatoire, un vaste bureau, une première chambre avec une salle de douche et des toilettes séparées ainsi qu'une buanderie.À l'étage, elle propose trois chambres, une salle de douche et une salle de bains avec des toilettes.
De nombreux rangements complètent l'ensemble.Un local dans le jardin et deux caves sont inclus cette offre rare à Paris.En option, possibilité d'acquérir dans la rue un emplacement de parking en supplément à 30.000euros.Proximité de la Rue du Commerce et de l'Ecole Bilingue.
- Emplacement privilégié dans le quartier Commerce à proximité des transports.
- Volumes généreux offrant confort et luminosité dans toute la maison.
Paris 15e - COMMERCE - Maison à vendre - 5 pièces
Les informations sur les risques auxquels ce bien est exposé sont disponibles sur le site Géorisques :
Réf : A3294GREGEN - Date : 08/01/2026
LES ATOUTS
CARACTÉRISTIQUES
DIAGNOSTICS ENERGETIQUES
LOCALISATION
NOUS CONTACTER
DEMANDE D'INFORMATIONS
Demander plus d’informations à JUNOT GRENELLE.

























