Appartement Paris 11e - 4 chambres - 103m²
75011 - Paris 11e
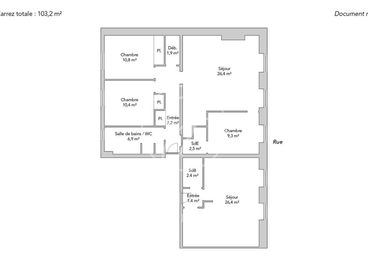
DESCRIPTIF
Au sein de la bonne portion de la rue de la Roquette, dans un immeuble ancien à la façade, cours et hall refaits.
Un appartement lumineux de 103,20m² loi Carrez situé au deuxième étage avec ascenseur.
Le plan optimal comporte une entrée, un vaste séjour avec cuisine ouverte et cheminée, exposé sud-est, deux chambres sur cour, une salle de bains avec toilettes, un débarras, une troisième chambre sur cour avec salle de douche.Ce bien nécessite quelques travaux.
Studio à rattacher à l'appartement.Une cave complète cette offre.
- Emplacement idéal dans une rue prisée et calme.
- Appartement spacieux de 103,20 m² avec 4 chambres.
Paris 11e - RUE DE LA ROQUETTE - Appartement à ven
Les informations sur les risques auxquels ce bien est exposé sont disponibles sur le site Géorisques :
Réf : 3315BRESAT2 - Date : 06/02/2026
LES ATOUTS
CARACTÉRISTIQUES
DIAGNOSTICS ENERGETIQUES
LOCALISATION
NOUS CONTACTER
DEMANDE D'INFORMATIONS
Demander plus d’informations à JUNOT MARAIS.



















