Appartement Paris 10e - 3 chambres - 108m²
75010 - Paris 10e
DESCRIPTIF
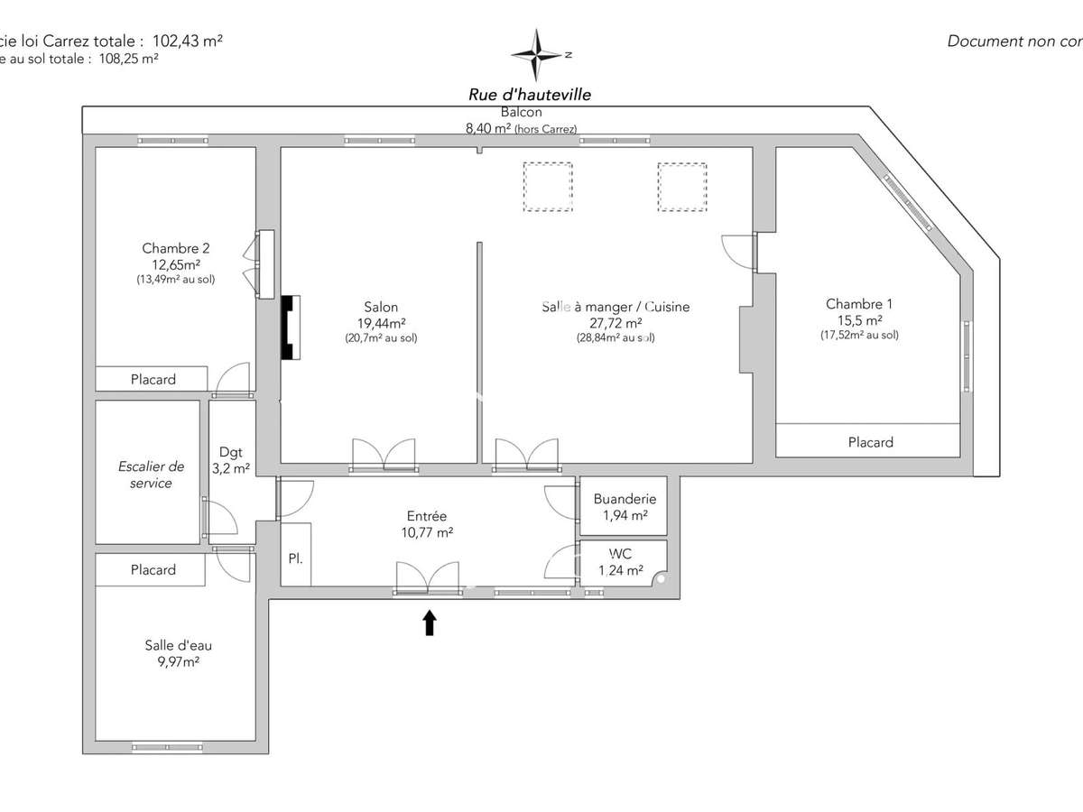
Rue d'Hauteville.Au cinquième étage par ascenseur (dernier étage habitable) d'un bel immeuble d'angle en pierre de taille, appartement traversant de 102,43m² loi Carrez, 108,24m² au sol.En parfait état, il comporte, une entrée avec rangements, un salon et une salle àmanger baignés de lumière, exposés ouest, ayant accès au balcon filant avec une cuisine ouverte et équipée, deux belles chambres, une grande salle de douche, un espace buanderie et des toilettes séparées.
Plan modulable en trois chambres.Entièrement rénové en 2020 avec de belles prestations, mariant charme de l'ancien (parquet, moulures et cheminée) et modernité, cet appartement saura vous séduire par sa luminosité, son espace extérieur et ses vues dégagées sur les toits de paris.
Deux chambres de service au sixième étage (7m² et 10m² au sol), accessibles depuis l'escalier de service au fond de l'appartement, ainsi qu'une cave complètent ce bien.EXCLUSIVITÉ.
- Luminosité exceptionnelle grâce à une exposition ouest et un balcon filant.
- Rénovation de qualité alliant charme ancien et modernité pour un confort optimal.
Paris 10e - RUE D'HAUTEVILLE / PARADIS - Apparteme
Les informations sur les risques auxquels ce bien est exposé sont disponibles sur le site Géorisques :
Réf : 1207POIPLA - Date : 18/04/2026
LES ATOUTS
CARACTÉRISTIQUES
DIAGNOSTICS ENERGETIQUES
LOCALISATION
NOUS CONTACTER
DEMANDE D'INFORMATIONS
Demander plus d’informations à JUNOT 10EME.




















