Appartement Neuilly-sur-Seine - 3 chambres - 295m²
92200 - Neuilly-sur-Seine
DESCRIPTIF
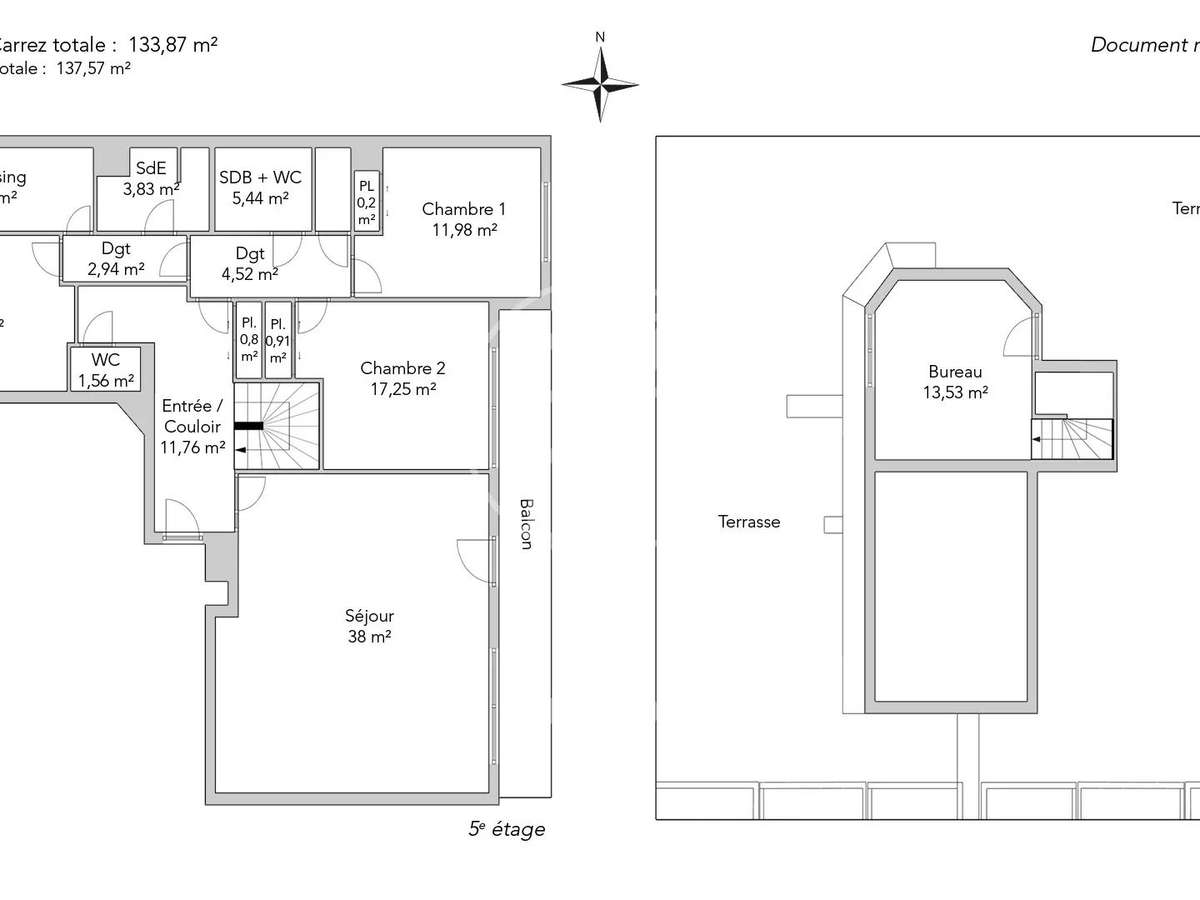
Dans le quartier prisé des Sablons, aux derniers étages par ascenseur d’un immeuble très bien entretenu des années 2000, superbe duplex de 133,87m² loi Carrez avec rooftop.Le premier niveau comprend une entrée desservant un double séjour, une cuisine séparée intégralement équipée, deux chambres, une salle de bains et une salle de douche.
Possibilité d'aménager une troisième chambre.
Niché dans un écrin de verdure, le dernier niveau accueille un grand bureau s’ouvrant sur un rooftop arboré et aménagé de 151m².Une cave et une grande place de parking complètent ce bien.
En bon état, cet appartement saura vous séduire par sa lumière, ses vues dégagées et ses espaces extérieurs.
- Rooftop privé de 151 m² avec vues dégagées
- Double séjour lumineux et cuisine entièrement équipée
Neuilly-sur-Seine - BINEAU / INKERMANN - Duplex à
Les informations sur les risques auxquels ce bien est exposé sont disponibles sur le site Géorisques :
Réf : 2073NEUBAR - Date : 18/04/2026
LES ATOUTS
CARACTÉRISTIQUES
DIAGNOSTICS ENERGETIQUES
LOCALISATION
NOUS CONTACTER
DEMANDE D'INFORMATIONS
Demander plus d’informations à JUNOT NEUILLY.
















