Appartement Neuilly-sur-Seine - 3 chambres - 113m²
92200 - Neuilly-sur-Seine
DESCRIPTIF
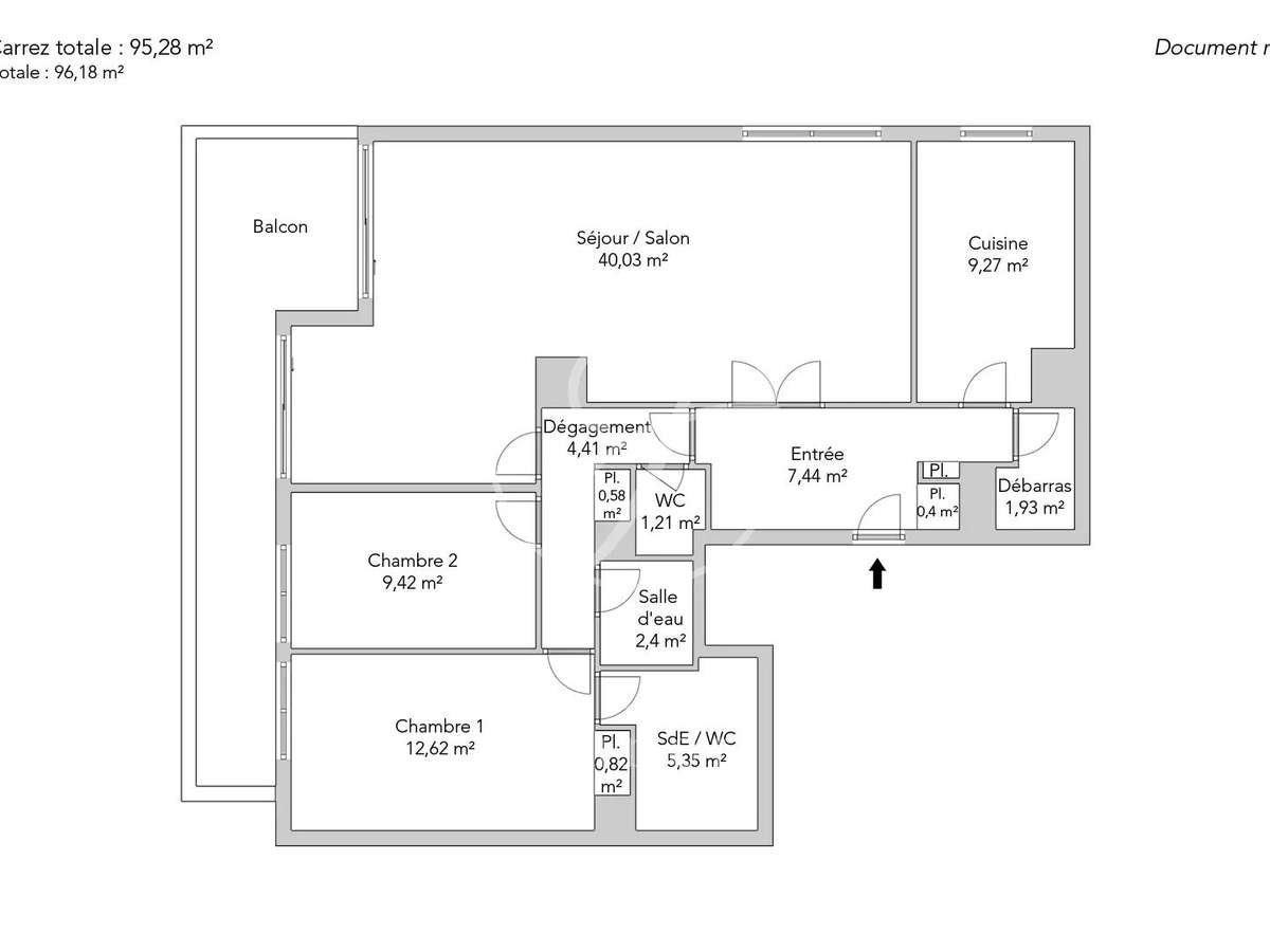
Dans le cadre bucolique de l’île de la Jatte, au cinquième étage avec ascenseur d'une copropriété récente et sécurisée, cet appartement familial de 96m² Loi Carrez, sans perte d’espace, offre de beaux volumes et une vue dégagée et arborée.Lumineux, il se compose d'une entrée, d’un double séjour donnant sur une terrasse de 16m², d’une cuisine séparée et équipée, d’une suite parentale avec salle de douche, d’une deuxième chambre, d’une salle de douche supplémentaire et d’un dressing.Possibilité de créer une troisième chambre.De nombreux rangements viennent compléter ce bien, ainsi qu'une grande cave.Une place de parking peut être acquise en supplément.
- Terrasse de 16m² proposant une vue dégagée sur la verdure.
- Double séjour lumineux propice à des moments conviviaux en famille.
Neuilly-sur-Seine - ÎLE DE LA JATTE - Appartement
Les informations sur les risques auxquels ce bien est exposé sont disponibles sur le site Géorisques :
Réf : 2138NEUBAR - Date : 04/04/2026
LES ATOUTS
CARACTÉRISTIQUES
DIAGNOSTICS ENERGETIQUES
LOCALISATION
NOUS CONTACTER
DEMANDE D'INFORMATIONS
Demander plus d’informations à JUNOT NEUILLY.













