Appartement Neuilly-sur-Seine - 3 chambres
92200 - Neuilly-sur-Seine
DESCRIPTIF
NEUILLY SUR SEINE / SECTORISATION PASTEUR.
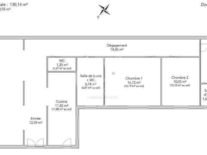
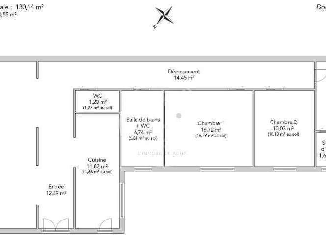
Situé entre Inkerman et Parmentier, au 3ème étage avec ascenseur d'une petite copropriété d'excellente facture, ce très bel appartement familial de 130,55m² totalement rénové par un architecte est composé d'un vaste séjour, de 3 chambres dont une suite parentale avec salle d'eau, d'une salle de bains avec wc, d'une cuisine dinatoire aménagée et équipée, d'un entrée avec espace bureau, d'un débarras ainsi que d'un second cabinet de toilettes.
Une cave ainsi qu'un un emplacement de parking au -premier sous-sol complètent cette offre.
Bien rare sur le secteur avec sectorisation Pasteur.
Prestations : Gardien, Parking, Fibre optique, Double vitrage, Parking.
Bien soumis au statut juridique de la Copropriété.
Nb de lots : 42.
Charges annuelles de copropriété (Montant moyen annuel quote-part du budget prévisionnel vendeur) : 6 396 .
Pas de procédure en cours.
Contactez votre Agent AXO - L'immobilier Actif au 024139..., Carlo SCHIRONE Négociateur Immobilier Salarié.
Plus d'informations sur (réf.
85024139...).
Prix TTC et Honoraires à charge vendeur TTC.
Les informations sur les risques auxquels ce bien est exposé sont disponibles sur le site Géorisques : https://www.georisques.gouv.fr/
- Rénovation de qualité : design moderne par architecte, embellit l'espace.
- Emplacement privilégié : secteur Pasteur, proche des commerces et transports.
Vente appartement
Réf : 85002121705 - Date : 30/10/2025
LES ATOUTS
CARACTÉRISTIQUES
DIAGNOSTICS ENERGETIQUES
LOCALISATION
NOUS CONTACTER
DEMANDE D'INFORMATIONS
Demander plus d’informations à AXO L'immobilier Actif.













