Appartement Megève - 5 chambres - 147m²
74120 - Megève
DESCRIPTIF
CENTRE, VASTE APPARTEMENT RENOVE CINQ CHAMBRES REF.
7683, au rez-de-chaussée et premier étage d'une petite résidence établie à 5 mns à pied du centre du village.
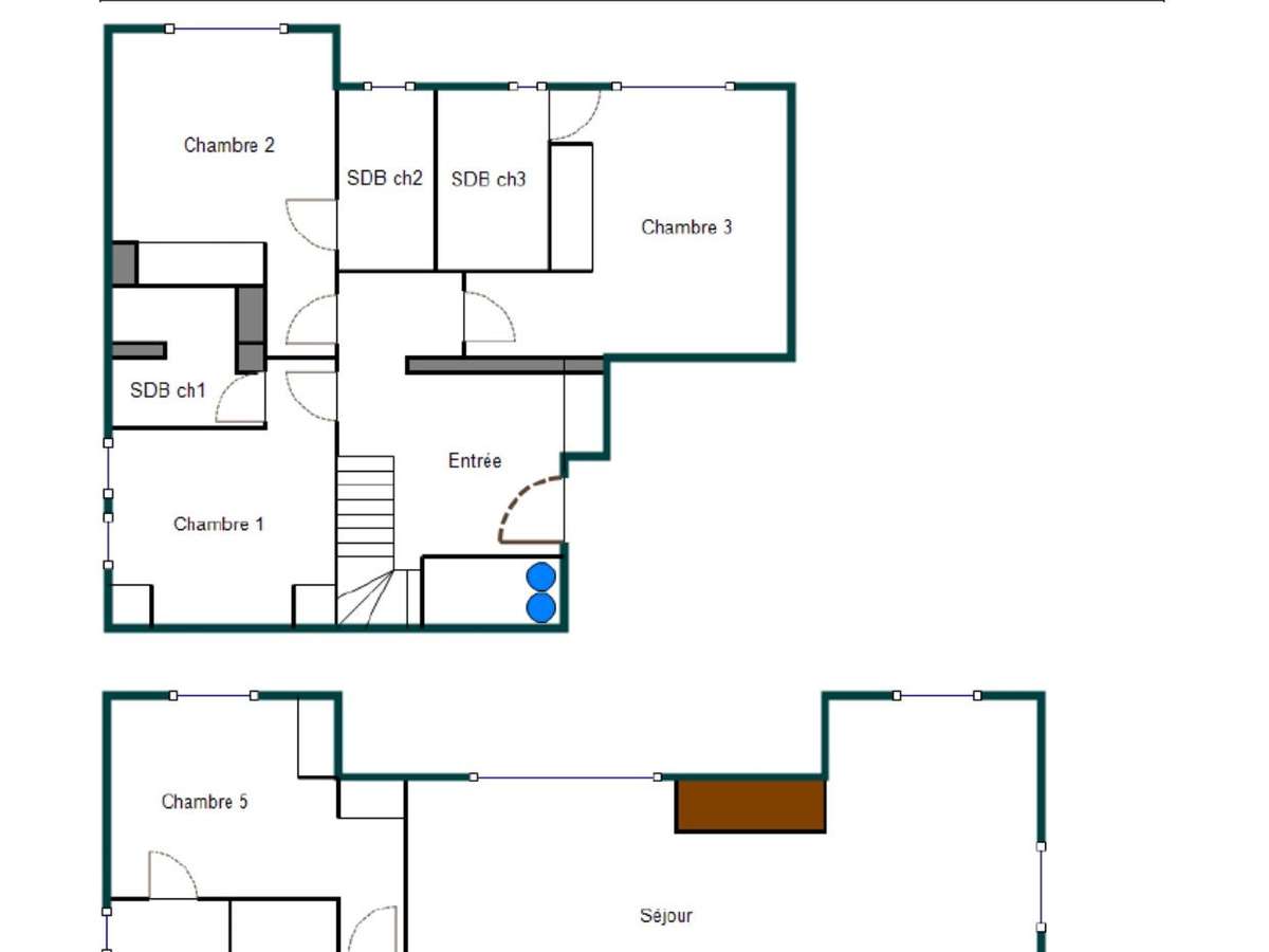
Au rez-de-chaussée : hall d'entrée avec placard et trois chambres en-suite, dont un dortoir enfants ; à l'étage, deux chambres en-suite et une vaste pièce de vie tournée vers le jardin avec un joli balcon filant : cuisine ouverte équipée, avec cellier, s'ouvrant sur la salle à manger, séparée virtuellement du salon par une belle cheminée.
Le tout dans une ambiance chaleureuse, mélangeant bois et matériau contemporain.
Surface LC 146,98 m².
Garage, placard à skis.
Bien soumis au statut de copropriété (5 lots dont 2 à usage d'habitation) ; Budget prévisionnel moyen des charges N/C €/an.
Pas de procédure en cours.Honoraires à la charge du vendeur.
Dans une copropriété de 6 lots.
Aucune procédure n'est en cours.
Classe énergie D, Classe climat B Montant estimé des dépenses annuelles d'énergie pour un usage standard : entre 2340.00 € et 3220.00 € sur les années 2021, 2022 et 2023 (abonnements compris).
Les informations sur les risques auxquels ce bien est exposé sont disponibles sur le site Géorisques : https://www.georisques.gouv.fr.
- > **Emplacement idéal** : à 5 minutes du centre-village de Megève.
- > **Rénovation de qualité** : mélange harmonieux de bois et style contemporain.
Centre, bel appartement rénové 5 chambres
Réf : 7683 - Date : 31/03/2026
LES ATOUTS
CARACTÉRISTIQUES
DIAGNOSTICS ENERGETIQUES
LOCALISATION
NOUS CONTACTER
DEMANDE D'INFORMATIONS
Demander plus d’informations à BOAN Immobilier Megève.



























