Appartement Anglet - 3 chambres - 88m²
64600 - Anglet
DESCRIPTIF
À quelques minutes des commerces et à proximité immédiate de la forêt de Chiberta, au sein d'un nouveau programme immobilier, cet appartement T4 de 88,72 m² situé en rez-de chaussée, sera livré en avril 2027.
Ce bien se distingue par la générosité et la rareté de ses espaces extérieurs, avec deux terrasses aux surfaces exceptionnelles : - Jardin de 324,69 m², véritable espace de vie extérieur - Terrasse de 21,83 m² L'appartement bénéficie de deux places de parking en sous-sol, apportant un confort supplémentaire au quotidien.
Un bien rare au sein d'un environnement recherché, offrant de larges extérieurs et une qualité de vie privilégiée, idéal pour un projet de résidence principale ou secondaire.
Autre lot disponible à la vente.
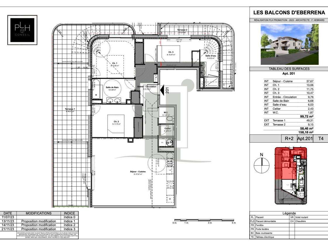
- Terrasses spacieuses de 49,31 m² et 9,15 m², pour un confort exceptionnel.
- Deux parkings en sous-sol pour un accès facile et sécurisé.
Anglet proche Chiberta : appartement T4 neuf avec grand jardin de 324 m² et terrasse , 2 parking en sous-sol
Réf : 928_59705806 - Date : 05/03/2026
CARACTÉRISTIQUES
COPROPRIÉTÉ
DIAGNOSTICS ENERGETIQUES
LOCALISATION
NOUS CONTACTER
DEMANDE D'INFORMATIONS
Demander plus d’informations à BIARRITZ LITTORAL IMMOBILIER.





