Appartement Monaco - 50m²
Monaco
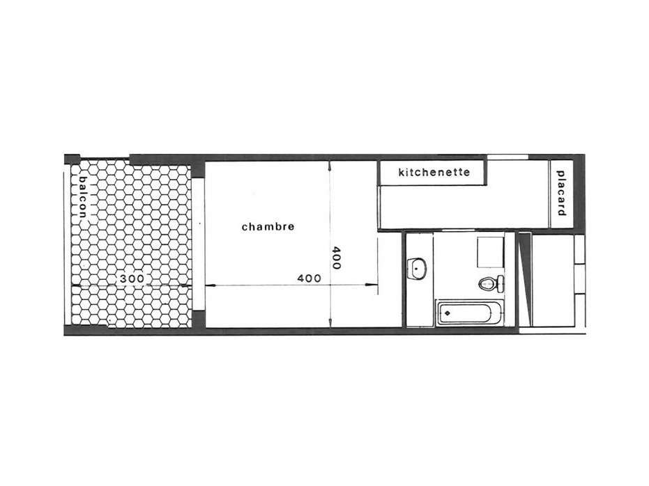
DESCRIPTIF
Le Park Palace est une prestigieuse résidence avec service de conciergerie 24/7, une piscine, une salle de fitness et un espace sauna.
La résidence est située à quelques pas de la place du Casino, des jardins et ses luxueuses enseignes et restaurants.
L'appartement est en très bon état, la cuisine a été entièrement rénovée, il est équipée de la climatisation et offre une agréable loggia.
Loué avec une cave et un parking
Le Park Palace est une prestigieuse résidence avec service de conciergerie 24/7, une piscine, une salle de fitness et un espace sauna.
La résidence est située à quelques pas de la place du Casino, des jardins et ses luxueuses enseignes et restaurants.
L'appartement est en très bon état, la cuisine a été entièrement rénovée, il est équipée de la climatisation et offre une agréable loggia.
Loué avec une cave et un parking
- Service de conciergerie disponible 24/7.
- Rénovation récente avec cuisine moderne.
Park Palace - Studio - Carré D'orPark Palace - Studio - Carré D'or
Les informations sur les risques auxquels ce bien est exposé sont disponibles sur le site Géorisques :
Réf : MC2-1147 - Date : 21/04/2026
LES ATOUTS
CARACTÉRISTIQUES
DIAGNOSTICS ENERGETIQUES
NOUS CONTACTER
MONTE-CARLO - SOTHEBY'S INTERNATIONAL REALTY
2 A AVENUE DE GRANDE BRETAGNE
98000 MONACO
DEMANDE D'INFORMATIONS
Demander plus d’informations à MONTE-CARLO - SOTHEBY'S INTERNATIONAL REALTY.
















