House Paris 18e - 4 bedrooms - 270m²
75018 - Paris 18e
DESCRIPTION
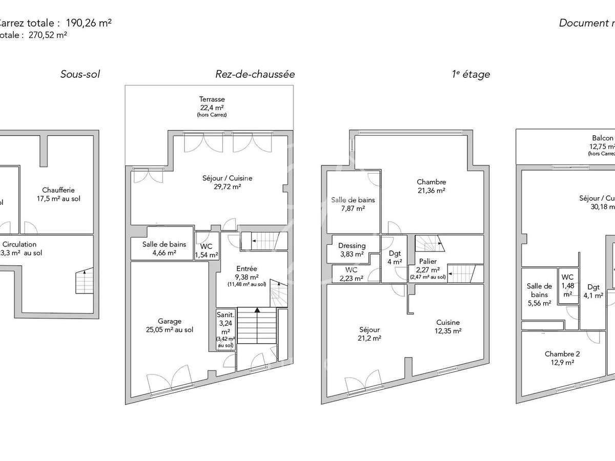
In one of Montmartre’s most sought-after addresses, a private mansion built in 1950 by architect Lucien Daboval offers 190.26sqm of living space (270.52sqm total floor area) and features two terraces.
Spread over three main levels connected by a beautiful original staircase, the property offers a family-friendly layout and generous volumes, as follows:
On the ground floor, the entrance opens onto a spacious bedroom with direct access to a landscaped terrace, a bathroom, a kitchen, and separate toilets.
On the first floor, an impressive living room with exceptional 3.80 m high ceilings, an open kitchen, and unobstructed views over Avenue Junot and its trees.
On the courtyard side, a bedroom with an en-suite bathroom, built-in storage, and toilets.
On the second floor, a bright lounge opening onto a large south-facing terrace, a fully equipped kitchen, two bedrooms, a bathroom, and separate toilets.
In the basement, a large laundry area and cellar.
A spacious garage with direct street access, along with the generous laundry and cellar space in the basement, complete this exceptional property.
This private mansion offers outstanding layout potential on the most beautiful avenue in the neighborhood.
A very rare opportunity on the market.
EXCLUSIVE.
- 190m² hotel particulier tastefully renovated in a sought-after area.
- Two south-facing terraces for optimal sunlight.
- Exceptional volume with a 3.80m high living room ceiling.
Townhouse - Paris 18th - Montmartre - 190.26 sqm - 4 bedrooms
Information on the risks to which this property is exposed is available on the Géorisques website :
Ref : HP5707JUNORM - Date : 18/04/2026
FEATURES
DETAILS
ENERGY DIAGNOSIS
LOCATION
CONTACT US
INFORMATION REQUEST
Request more information from JUNOT MONTMARTRE.















