House Paris 15e - 4 bedrooms - 140m²
75015 - Paris 15e
DESCRIPTION
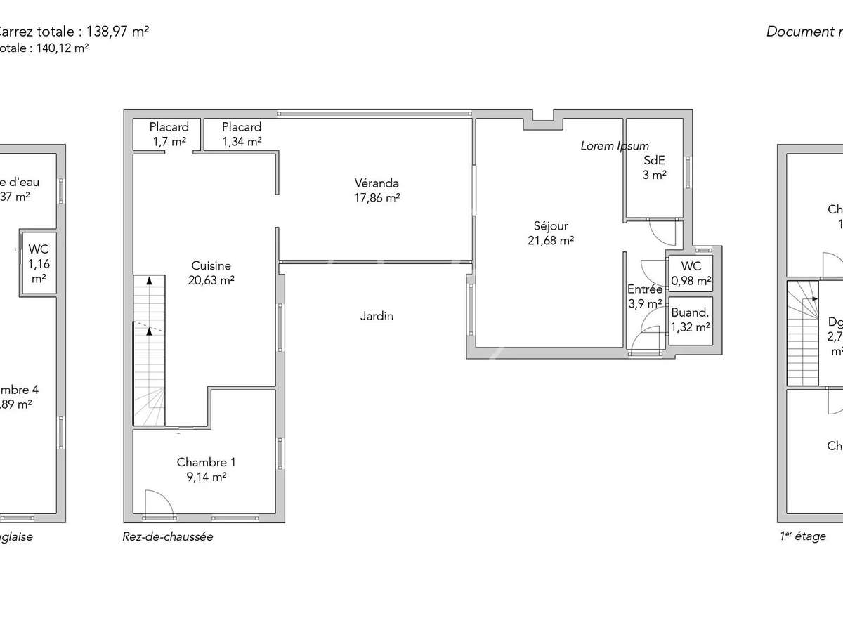
Located on a quiet street, in a well-maintained condominium, this charming house of 138.97sqm loi Carrez and 140.12sqm floor area is spread over three levels.
The property is distinguished by its atypical character and functional layout.
On the main level, there are two living rooms, an open-plan fitted kitchen, a dining room under a splendid glass roof that links the two wings of the building, a first bedroom, a shower room and a separate toilet.
Upstairs, two further bedrooms with a bathroom and separate toilet.
Downstairs, a fourth bedroom, shower room and toilet.
The spaciousness of this home allows for optimal family organization.
Outside, a wooded garden offers a privileged space for relaxation, in absolute calm.
This warm and original property will appeal to those seeking a different kind of living space, combining comfort and serenity.
A cellar completes the property.
EXCLUSIVITY.
- Landscaped garden, a quiet and intimate space for relaxation.
- Bright glass roof, adding charm and light.
- Functional layout, perfect for family living.
Townhouse - Paris 15th - 138.97 sqm - 4 bedrooms
Information on the risks to which this property is exposed is available on the Géorisques website :
Ref : 3478BTLVIL - Date : 18/04/2026
FEATURES
DETAILS
ENERGY DIAGNOSIS
LOCATION
CONTACT US
INFORMATION REQUEST
Request more information from JUNOT BRETEUIL.
































