Apartment Paris 9e - 1 bedroom - 33m²
75009 - Paris 9e
DESCRIPTION
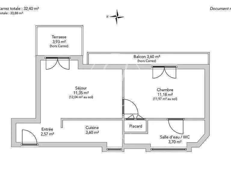
Just a stone's throw from the highly sought-after Avenue Trudaine, in a quiet street, superb 32.40sqm loi Carrez apartment with 33.88sqm floor space, on the seventh and penultimate floor (with elevator) of a well-maintained 1930s building.
Its compact layout comprises an entrance hall with storage space, an east-facing living room opening onto a terrace with unobstructed views of the Sacré-Coeur, a semi-open fitted and equipped kitchen, a bedroom with a balcony, a shower room with toilet and laundry area.
A cellar completes this property.
This apartment will win you over with its space-saving layout, unobstructed views and plenty of sunshine.
Exceptional layout and location.
Live-in janitor.
EXCLUSIVE
- Terrace with unobstructed view of the Sacré-Coeur for relaxing moments outdoors.
- Bright and well-designed, this apartment benefits from east exposure for optimal sunlight.
- Ideal location just steps from avenue Trudaine in a quiet and sought-after neighborhood.
Apartment - Paris 9th - Garnier Opera - 32.4 sqm - 1 bedroom
Information on the risks to which this property is exposed is available on the Géorisques website :
Ref : OA3524MARGON - Date : 21/04/2026
FEATURES
DETAILS
ENERGY DIAGNOSIS
LOCATION
CONTACT US
INFORMATION REQUEST
Request more information from JUNOT MARTYRS.















