Apartment Paris 9e - 2 bedrooms - 120m²
75009 - Paris 9e
DESCRIPTION
A stone's throw from rue Lepic and the Moulin Rouge, in the heart of a quiet avenue, superb duplex artist's studio on the third floor by elevator of a 1930 Art Deco building.
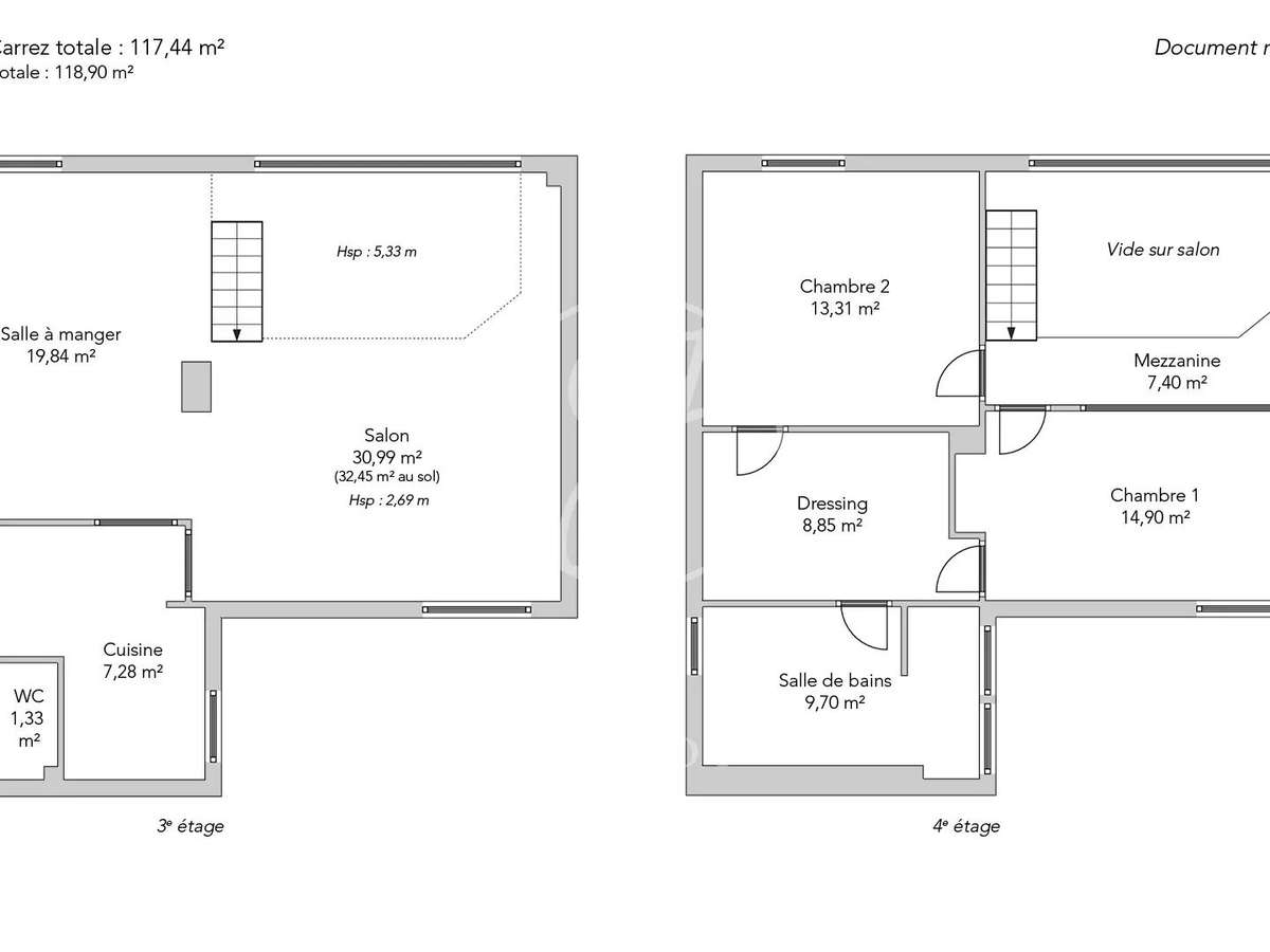
With a floor surface area of 118.90sqm (117.44sqm), this rare property boasts exceptional calm and luminosity thanks to its majestic glass roof, east-facing aspect and generous volumes.
Renovated with taste and refinement, it is laid out as follows: on the first level, an entrance hall, a separate fitted kitchen, a guest toilet, a superb 50.83m² reception room combining living room and dining room, featuring a functional fireplace and high ceilings.
Upstairs, a mezzanine gallery opens onto the reception room and leads to two comfortable bedrooms, a dressing room and a spacious bathroom with shower, bath and toilet.
Meticulous appointments, a serene ambience and spacious rooms make this property a warm and inviting place to live.
A cellar completes this property.
Secure luxury condominium with digicode, intercom and janitor.
- Stunning brightness thanks to a majestic glass roof and east-facing orientation.
- Quality renovation combining taste and comfort in a serene setting.
- Secure Art Deco building with digicode, intercom, and caretaker.
Apartment - Paris 9th - Garnier Opera - 117.44 sqm - 2 bedrooms
Information on the risks to which this property is exposed is available on the Géorisques website :
Ref : 5825JUNVAG09 - Date : 18/04/2026
FEATURES
DETAILS
ENERGY DIAGNOSIS
LOCATION
CONTACT US
INFORMATION REQUEST
Request more information from JUNOT MONTMARTRE.

























