Apartment Paris 9e - 3 bedrooms - 122m²
75009 - Paris 9e
DESCRIPTION
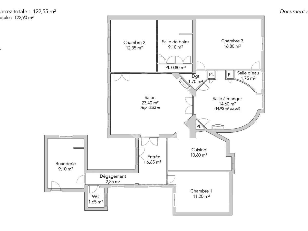
On the third floor of a perfectly maintained old building, this elegant 122.55sqm loi Carrez apartment boasts spacious rooms and unspoilt charm.
Occupying its own landing and facing onto the courtyard, it offers rare calm and pleasant light.
The entrance hall leads to a vast living room with functional fireplace and a refined dining room with Prussian stove.
The separate, fully-equipped kitchen completes the space.
The night area includes a master suite with en suite bathroom, as well as two additional bedrooms, one with private shower room.
A laundry room with shower, access to service stairs and separate toilet optimize comfort.
A cellar completes this property.
- Exceptional tranquility due to its courtyard orientation
- Quality renovation blending charm and modernity
- Pleasant and bright outdoor spaces
Apartment - Paris 9th - Garnier Opera - 122.55 sqm - 3 bedrooms
Information on the risks to which this property is exposed is available on the Géorisques website :
Ref : 3453STGBAS - Date : 18/04/2026
FEATURES
DETAILS
ENERGY DIAGNOSIS
LOCATION
CONTACT US
INFORMATION REQUEST
Request more information from JUNOT SAINT GEORGES.

















