Apartment Paris 9e - 3 bedrooms - 168m²
75009 - Paris 9e
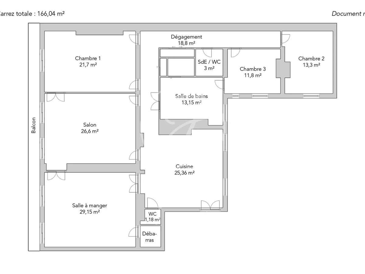
DESCRIPTION
On the sixth floor by elevator of a magnificent condominium that has been refurbished and is guarded, attractive family apartment with a balcony.
It comprises a large, fully-equipped kitchen-dining room, an adjoining west-facing living room with a balcony overlooking the sky and Sacré-Cœur, a bedroom with a storeroom (shower room possible), a bedroom overlooking rue Drouot, a bathroom with laundry facilities and a guest toilet.
On the courtyard side, in absolute calm, there are two bedrooms and a shower room with toilet.
A cellar completes this property.
Its central location, well-maintained condominium, high floor, sunny west, east and south exposures, 2.94 m high ceilings, perfect condition, unobstructed views of the sky, rooftops and Sacré-Coeur and its exterior are sure to win you over.
RARE.
- Prime central location in the heart of Paris 9e.
- Balcony with sky and Sacré-Cœur views for outdoor enjoyment.
- Secure and well-maintained condominium with concierge.
Apartment - Paris 9th - Garnier Opera - 168.0 sqm - 3 bedrooms
Information on the risks to which this property is exposed is available on the Géorisques website :
Ref : 3364STGBERGRA - Date : 10/03/2026
FEATURES
DETAILS
ENERGY DIAGNOSIS
LOCATION
CONTACT US
INFORMATION REQUEST
Request more information from JUNOT SAINT GEORGES.

















