Apartment Paris 6e - 2 bedrooms - 90m²
75006 - Paris 6e
DESCRIPTION
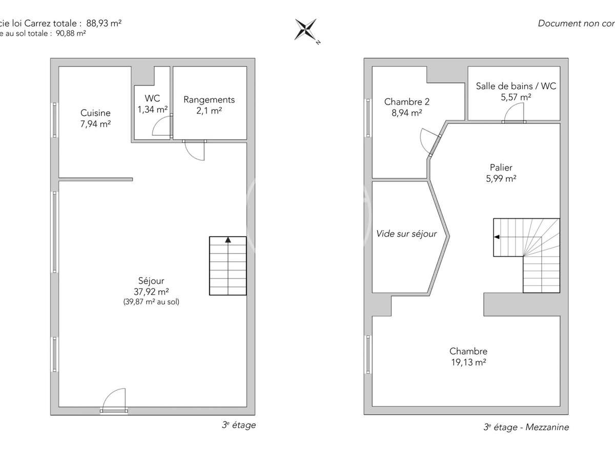
Rue du Cherche-Midi, near the Carrefour de la Croix-Rouge, on the third floor by staircase of an elegant old building, an artist's studio of 88.93sqm loi Carrez and 90.88sqm on the ground.
Located in one of the most sought-after areas of the 6th arrondissement, this apartment enjoys a lively and refined environment, with galleries, bookshops, historic cafés and confidential addresses.
Rue du Cherche-Midi has a discreet elegance and an unspoilt residential atmosphere.
The apartment features a mezzanine floor plan that reflects the style of an artist's studio: spacious open spaces, high ceilings and generous natural light.
The first level features a well-balanced double reception room, a separate kitchen and a guest toilet.
An interior staircase leads to the mezzanine.
The second level features a landing leading to two bedrooms and a bathroom with toilet.
The layout offers a clear separation between reception and sleeping areas.
The apartment enjoys an unobstructed view over a tree-lined courtyard, in absolute calm, away from the hustle and bustle of the neighborhood.
This location gives the apartment a peaceful atmosphere, rare at this address.
A cellar completes this offer.
- Bright duplex with skylight offering an atelier feel.
- Absolute tranquility with views over a tree-lined courtyard.
- Excellent layout with separation between reception and sleeping areas.
Apartment - Paris 6th - Saint-Germain-des-Prés - 88.93 sqm - 2 bedrooms
Information on the risks to which this property is exposed is available on the Géorisques website :
Ref : 1989CHMHEN - Date : 18/04/2026
DETAILS
ENERGY DIAGNOSIS
LOCATION
CONTACT US
INFORMATION REQUEST
Request more information from JUNOT 6E.













