Apartment Paris 6e - 3 bedrooms - 184m²
75006 - Paris 6e
DESCRIPTION
A few steps from the Luxembourg gardens.
Remarkable location for this apartment overlooking the Senate.
On the second floor by elevator of a beautiful 19th-century building with concierge, this apartment is ideal.
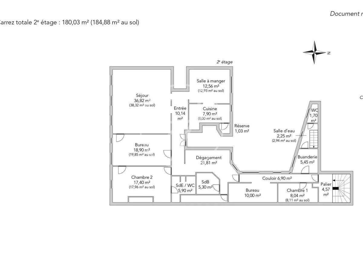
Bright, it comprises an entrance hall leading to a dining kitchen, an elegant living room overlooking the gardens, a master suite with bathroom and dressing room, two bedrooms with bathroom and shower.
Air-conditioning.
- Prime location just steps from Luxembourg Gardens.
- 19th-century building with onsite concierge in a historic setting.
- Modern comfort with air conditioning and spacious living areas.
Apartment - Paris 6th - Saint-Germain-des-Prés - 180.03 sqm - 3 bedrooms
Information on the risks to which this property is exposed is available on the Géorisques website :
Ref : 855JFPFRA - Date : 13/03/2026
FEATURES
DETAILS
ENERGY DIAGNOSIS
LOCATION
CONTACT US
INFORMATION REQUEST
Request more information from JUNOT FINE PROPERTIES.























