Apartment Paris 1er - 1 bedroom - 72m²
75001 - Paris 1er
DESCRIPTION
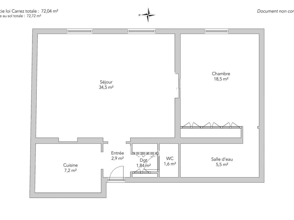
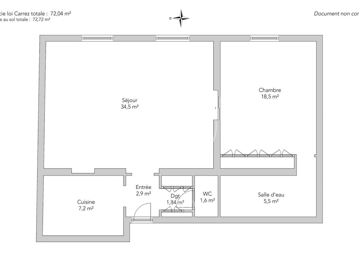
On the third floor after the entresol of an old building with elevator, this 72.04sqm carrez apartment offers an optimal layout and generous volumes, opposite the Tuileries gardens.
The entrance hall with guest toilet leads to a beautiful 35m² reception room opening onto a balcony overlooking rue Saint-Roch, a semi-open fitted kitchen, then a spacious en suite bedroom with bathroom and toilet.
Plenty of storage space and a laundry area.
Cellar.
This apartment, in perfect condition, benefits from a privileged location in the heart of Paris.
Ideal pied à terre.
Must be vacated by August 1, 2026.
EXCLUSIVE.
- Prime location in the heart of Tuileries, near the garden.
- Spacious reception area of 35m² with balcony over rue Saint-Roch.
- Quality renovation featuring ample storage and modern comforts.
Apartment - Paris 1st - Louvre, Marais, Notre Dame - 72.04 sqm - 1 bedroom
Information on the risks to which this property is exposed is available on the Géorisques website :
Ref : 1906CHMHEN/3518BRE - Date : 10/03/2026
FEATURES
DETAILS
ENERGY DIAGNOSIS
LOCATION
CONTACT US
INFORMATION REQUEST
Request more information from JUNOT MARAIS.












