Apartment Paris 1er - 3 bedrooms - 145m²
This exceptional property is no longer available on BellesPierres.com
See our other nearby searches
Apartment Paris 1er - 3 bedrooms - 145m²
This exceptional property is no longer available on BellesPierres.com
See our other nearby searches
Apartment Paris 1er - 3 bedrooms - 145m²
75001 - Paris 1er
DESCRIPTION
The Michaël Zingraf agency offers you:
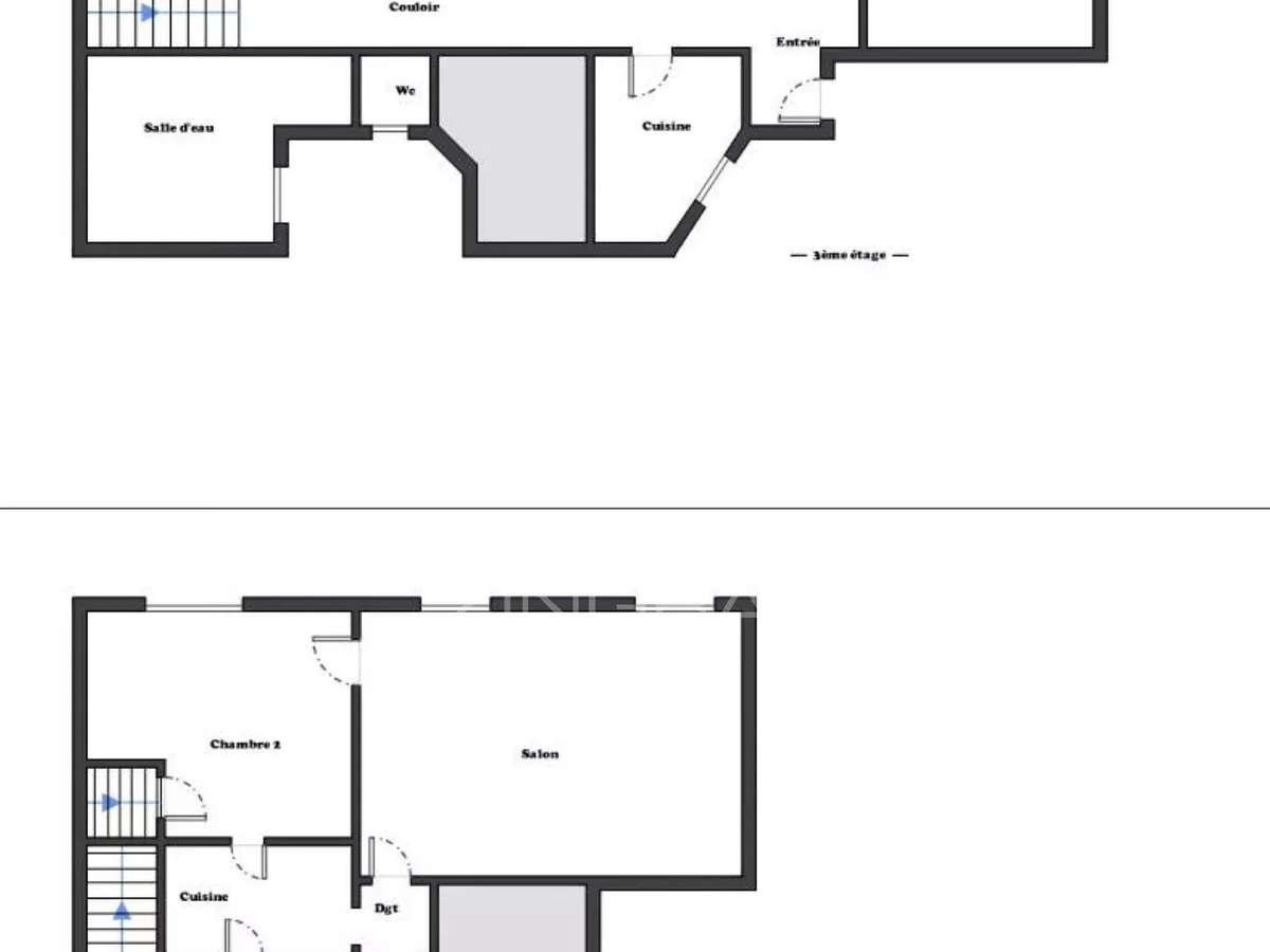
In the heart of Île de la Cité, in one of the most iconic locations in Paris, this 145 m² duplex apartment occupies the 3rd and 4th floors of a characterful building with a lift.
The charm is apparent from the moment you enter: the building's lobby, classified as a historic monument, reflects the elegance and prestige of the premises.
Inside, light floods in through eight large windows overlooking the Seine.
The view is simply exceptional: an open panorama of the river and La Samaritaine, offering a unique and rare perspective in the heart of the capital.
The living space extends over more than 100 m² on the 3rd floor, complemented by an additional 42 m² on the 4th floor.
Its layout allows for a refined design, with up to three bedrooms, while preserving generous reception areas.
The flat requires complete renovation, offering total freedom of layout and the possibility of creating a bespoke space worthy of this exceptional address.
A cellar completes this property.
(5.00% commission including VAT payable by the purchaser.)
Co-ownership of 36 lots.
No proceedings in progress.
DPE 304 / E
GES 39 / B
Translated with DeepL.com (free version)
- Vue exceptionnelle sur la Seine et la Samaritaine.
- Élégance historique grâce à un hall classé monument historique.
FOR SALE - 3 Bedroom Apartment - Ile de la Cité - Exceptional View
Information on the risks to which this property is exposed is available on the Géorisques website :
Ref : MZIPARG247 - Date : 28/11/2025
FEATURES
DETAILS
ENERGY DIAGNOSIS
CONTACT US
INFORMATION REQUEST
Request more information from MICHAËL ZINGRAF REAL ESTATE PARIS RIVE GAUCHE.


