Apartment Paris 1er - 2 bedrooms - 73m²
This exceptional property is no longer available on BellesPierres.com
See our other nearby searches
Apartment Paris 1er - 2 bedrooms - 73m²
This exceptional property is no longer available on BellesPierres.com
See our other nearby searches
Apartment Paris 1er - 2 bedrooms - 73m²
75001 - Paris 1er
DESCRIPTION
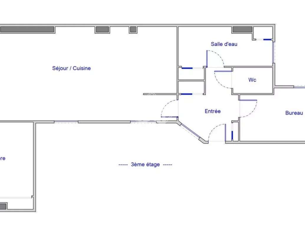
Ideally located on the Place du Marché Saint Honoré, this 72.46 m2 loi Carrez apartment is on the 3rd floor of a handsome building, accessible by staircase.
Recently renovated, the apartment features a large reception room with open-plan fitted kitchen, dining room and living room.
Street side: master bedroom with dressing room
Courtyard side: a small bedroom/study
A large shower room completes the property.
- Emplacement privilégié sur la Place du Marché Saint Honoré, au cœur de Paris.
- Rénovation récente qui allie modernité et charme historique.
Renovated apartment - Place du Marché Saint Honoré
Information on the risks to which this property is exposed is available on the Géorisques website :
Ref : PRD55 - Date : 28/11/2025
DETAILS
ENERGY DIAGNOSIS
CONTACT US
INFORMATION REQUEST
Request more information from MAGREY & SONS PARIS.


