Apartment Paris 18e - 2 bedrooms - 77m²
75018 - Paris 18e
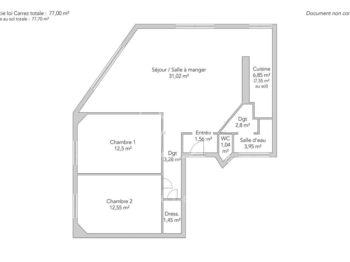
DESCRIPTION
In the Jardin du Sacré-Cœur district, in a beautiful stone corner building with elevator and live-in janitor, magnificent 77sqm apartment, in perfect condition and entirely renovated by architect.
It comprises an entrance hall, a vast living room with large windows, a fitted and equipped kitchen, two bedrooms, a shower room with laundry facilities and a separate toilet.
Optimized layout with no loss of space.
Plenty of built-in storage space.
Period features retained.
Soundproofing installed on the floor.
This bright, unoverlooked apartment enjoys a quiet, leafy setting close to the Sacré-Cœur gardens.
Voted roof work to be paid by seller.
A cellar completes this property.
EXCLUSIVITY.
- Spacious living room with large windows, bright and pleasant.
- High-quality renovation by an architect, no work required.
- Quiet environment with access to the Jardins du Sacré-Cœur.
Apartment - Paris 18th - Montmartre - 77.0 sqm - 2 bedrooms
Information on the risks to which this property is exposed is available on the Géorisques website :
Ref : 5810JUNDEL - Date : 18/04/2026
FEATURES
DETAILS
ENERGY DIAGNOSIS
LOCATION
CONTACT US
INFORMATION REQUEST
Request more information from JUNOT MONTMARTRE.






















