€3,675,000
Apartment Paris 17e - 4 bedrooms - 293m²
75017 - Paris 17e
292.88m²
7 rooms
4 beds
DESCRIPTION
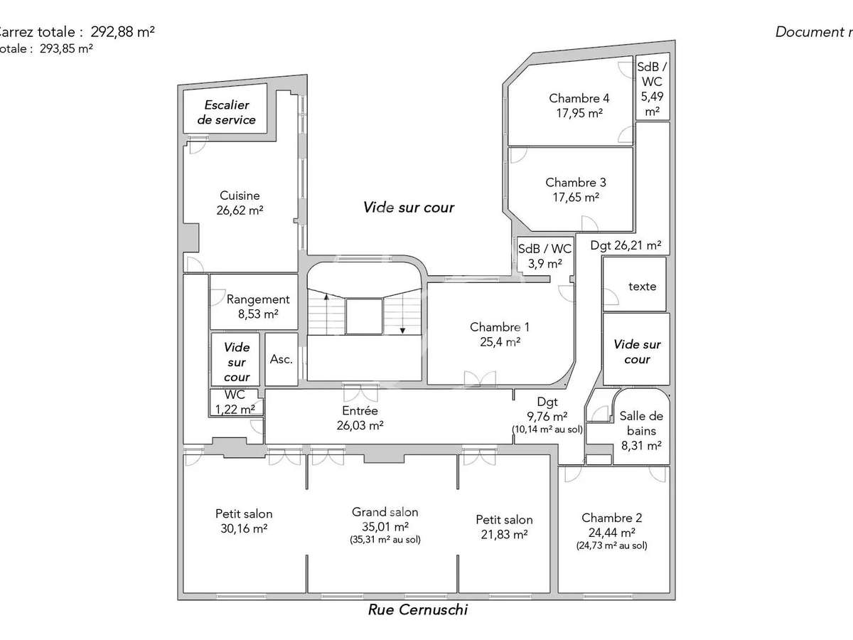
Located in Plaine Monceau, this 293sqm apartment is on the second floor with elevator of an old building.
Close to all amenities.
This family apartment comprises: entrance gallery, large reception area, four bedrooms (possibility of five), three bathrooms with toilet, two shower rooms with toilet, separate toilet and separate kitchen.
Two cellars in the basement complete this property.
- Prime location in Plaine Monceau, close to all amenities.
- Large reception area providing exceptional brightness.
- Option for a fifth bedroom to suit your needs.
Apartment - Paris 17th - Monceau - 292.88 sqm - 4 bedrooms
Information on the risks to which this property is exposed is available on the Géorisques website :
Ref : 3445BRECHV/2907WAG - Date : 21/04/2026
FEATURES
Lift
DETAILS
Price
€3,675,000
Home type
Apartment
City
Paris 17e (75017)
Rooms
7
Surface
293 m²
Living surface
292.88 m²
Bedrooms
4
Bathrooms
3
Half bathrooms
1
Kitcken type
Cuisine nonéquipée
Price details
ENERGY DIAGNOSIS
DPE
E
286 kWh/m².y
GES
E
63 kgCO2/m².y
Show more
LOCATION
CONTACT US
INFORMATION REQUEST
Request more information from JUNOT WAGRAM PEREIRE.



























