Apartment Paris 16e - 4 bedrooms - 252m²
75016 - Paris 16e
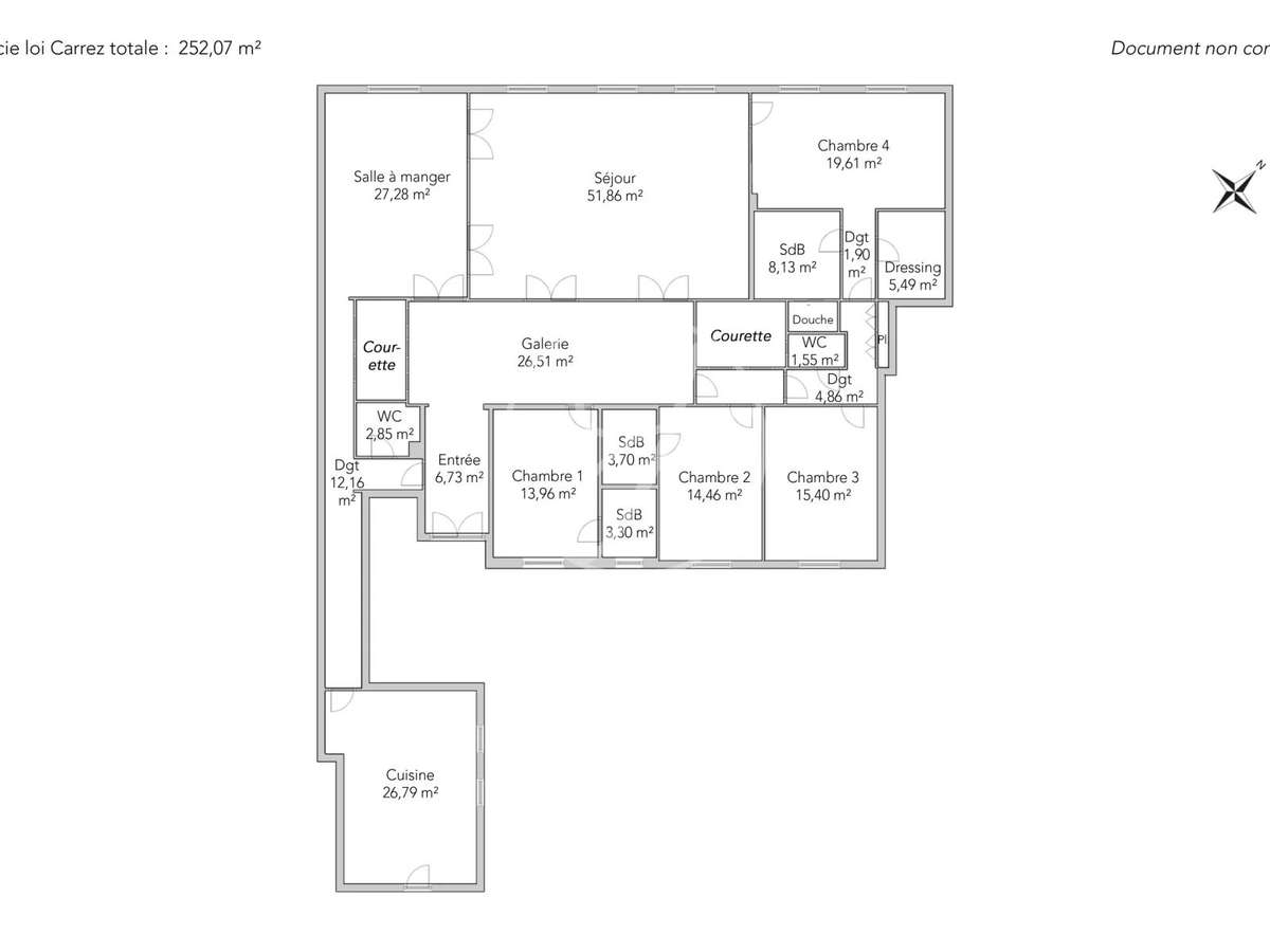
DESCRIPTION
On the fourth floor by elevator of an elegant 1905 freestone building, this 252.07sqm loi Carrez family and reception apartment boasts magnificent volumes in a preserved Haussmann spirit.
From the entrance, a majestic gallery distributes the spaces and creates a remarkable perspective.
The living room, measuring over 50sqm, opens out onto the boulevard and enjoys an unobstructed, green view, offering constant luminosity.
Mouldings, fireplaces, carefully decorated original marble and high ceilings underline the authentic character of the property.
An adjoining dining room extends the receptions.
The separate 26.79sqm kitchen provides a comfortable and functional dining area.
The perfectly separate night space comprises three bedrooms, two of which have private shower rooms, and a master suite with bathroom and dressing room.
Circulation is fluid and the layout particularly well-balanced.
Two guest toilets complete the layout.
With its open-plan layout, light and spacious rooms, this apartment will seduce you with its original cachet, its sought-after address and its open views over its wooded surroundings.
A property with character in the heart of the 16th arrondissement, within easy reach of shops, transport and renowned schools.
- Generous spaces: 252.07m² providing exceptional volumes.
- Haussmannian elegance: preserved original moldings and fireplaces.
- Prime location: close to transport and local shops.
Apartment - Paris 16th - Victor Hugo, Passy, Auteuil - 252.07 sqm - 4 bedrooms
Information on the risks to which this property is exposed is available on the Géorisques website :
Ref : 1999CHMDEP - Date : 18/04/2026
FEATURES
DETAILS
ENERGY DIAGNOSIS
LOCATION
CONTACT US
INFORMATION REQUEST
Request more information from JUNOT PASSY- LA MUETTE.



















