Apartment Paris 16e - 3 bedrooms - 310m²
75016 - Paris 16e
DESCRIPTION
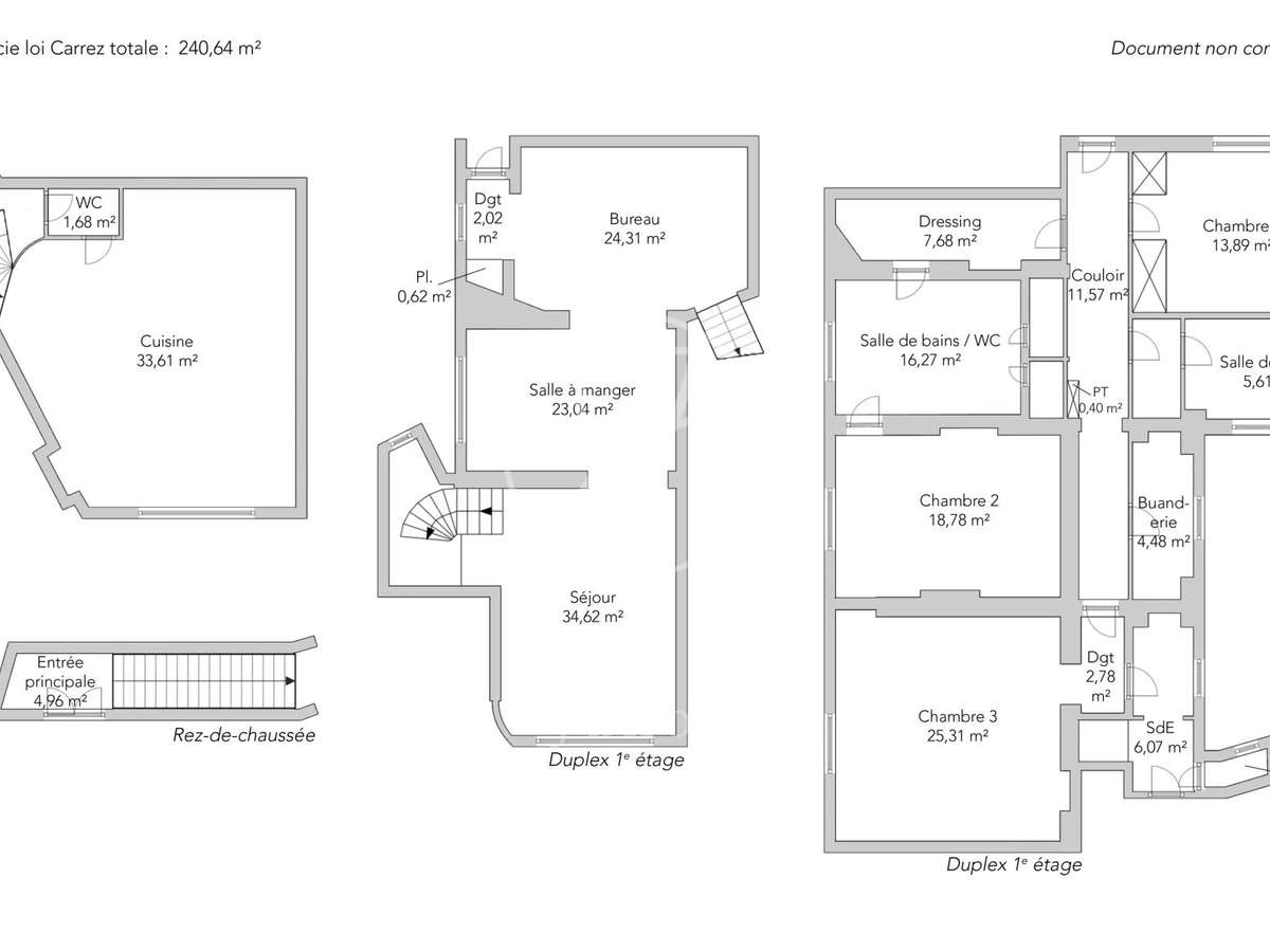
In a beautiful Haussmannian building on Avenue Foch, this exceptional 240.64 sq m (Carrez Law) apartment has been completely redesigned by architect Pierre Yovanovitch.
The entrance opens onto an elegant gallery leading to a spacious, light-filled living room with unobstructed views of the avenue's trees.
A separate dining room and an office complete the reception areas.
The furniture in the living room and dining room, as well as the headboards, are by Maison Bentley, lending the entire apartment a particularly high-end feel.
The sleeping area comprises three suites.
The master suite features a dressing room and a bathroom.
The two other bedrooms each have their own shower room.
One of them, accessible via a service entrance, offers welcome privacy.
On the lower level, a spacious eat-in kitchen opens onto a private landscaped garden designed by Camille Muller, offering complete privacy.
The apartment benefits from full soundproofing and quadruple-glazed windows.
It features central gas heating and individual hot water.
A rare property combining period charm with top-of-the-range contemporary amenities.
- Generous size of 240.64 m², perfect for comfortable living.
- High-end renovation by architect Pierre Yovanovitch, blending style and modernity.
- Private landscaped garden providing a peaceful and intimate outdoor space.
Apartment - Paris 16th - Victor Hugo, Passy, Auteuil - 240.64 sqm - 3 bedrooms
Information on the risks to which this property is exposed is available on the Géorisques website :
Ref : 2009VHUVID - Date : 18/04/2026
FEATURES
DETAILS
ENERGY DIAGNOSIS
LOCATION
CONTACT US
INFORMATION REQUEST
Request more information from JUNOT VICTOR HUGO.




















