Apartment Paris 16e - 4 bedrooms - 205m²
75016 - Paris 16e
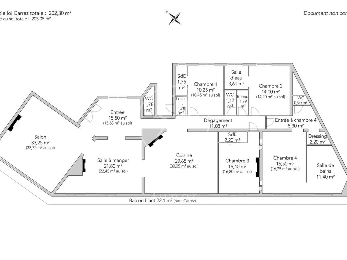
DESCRIPTION
Just steps from the Trocadéro, in a prestigious Haussmannian building, this 202.30 sq m (Carrez Law) apartment is located on the second floor (with elevator) and is fully air-conditioned.
Luxuriously renovated by an architect, it features balconies with views of the Eiffel Tower and Arc de Triomphe.
Bright and airy, it comprises an entrance hall, a spacious, open-plan reception area with high ceilings and abundant natural light, including a living room, dining room, and eat-in kitchen, a master suite with dressing room and bathroom, three further en suite bedrooms, each with its own bathroom, and a laundry room.
A cellar completes this exceptional property, which is sold furnished.
- **Prime location** near Trocadéro, providing an unmatched living environment.
- **High-end renovation** by an architect, luxury amenities, and modern comfort.
- **Exceptional views** of the Eiffel Tower and the Arc de Triomphe from the balconies.
Apartment - Paris 16th - Victor Hugo, Passy, Auteuil - 202.3 sqm - 4 bedrooms
Information on the risks to which this property is exposed is available on the Géorisques website :
Ref : 1964VHUSON - Date : 18/04/2026
FEATURES
DETAILS
ENERGY DIAGNOSIS
LOCATION
CONTACT US
INFORMATION REQUEST
Request more information from JUNOT VICTOR HUGO.





















