Apartment Paris 16e - 8 bedrooms - 453m²
75016 - Paris 16e
DESCRIPTION
In the heart of the highly sought-after 16th arrondissement, between the Place de l’Étoile and the Trocadéro, just steps from the Champs-Élysées, upscale shops, and public transportation, this property boasts a prestigious and international address.
Located within a remarkable eclectic-style building erected in 1895, with elegant common areas, this exceptional property occupies the entire first floor.
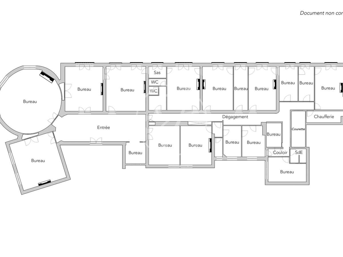
With a living area of 452.64 sq m (Carrez Law), suitable for mixed use, it comprises eighteen rooms of remarkable proportions, arranged around a fluid layout allowing for multiple configurations.
The property is captivating for its absolute tranquility, its impressive ceiling height, and the richness of its perfectly preserved period features: refined moldings, noble proportions, and a truly authentic atmosphere.
A true signature feature, a spectacular 58m² rotunda, currently used as a meeting room, offers a rare, light-filled circular space.
It is ideally suited for creating a reception area, a presentation space, or an exceptional living area.
This rare property combines prestige, architectural character, and development potential within a secure environment, in close proximity to embassies and international institutions.
- Prime location near the Champs-Élysées and public transport.
- Quality renovation preserving beautiful historical elements.
- Architectural gem with a 58m² light-filled rotunda.
Apartment - Paris 16th - Victor Hugo, Passy, Auteuil - 452.64 sqm - 8 bedrooms
Information on the risks to which this property is exposed is available on the Géorisques website :
Ref : 3547BTLGRA - Date : 02/04/2026
FEATURES
DETAILS
ENERGY DIAGNOSIS
LOCATION
CONTACT US
INFORMATION REQUEST
Request more information from JUNOT FINE PROPERTIES.
































