Apartment Paris 16e - 2 bedrooms - 79m²
75016 - Paris 16e
DESCRIPTION
On the garden level of a perfectly maintained luxury building, located in one of the quietest and most sought-after parts of Rue du Ranelagh, this beautiful four-room apartment offers a rare and privileged living environment.
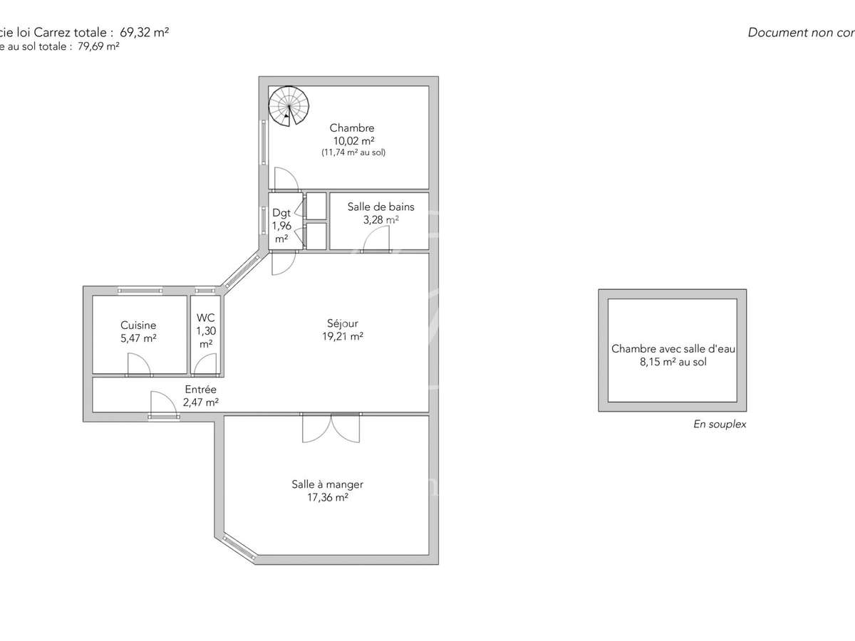
With a surface area of 69.32sqm Carrez (79.69sqm floor area), it features an optimized layout.
The well-exposed reception room opens onto a pleasant 30m² terrace, a true extension of the living room.
A convivial dining room and functional kitchen blend harmoniously into the ensemble.
The main sleeping area includes a comfortable bedroom with en-suite bathroom and plenty of custom-made storage space.
On the souplex, a second bedroom, ideal as an extra or guest bedroom, has its own shower room, offering perfect independence.
Completely renovated with particular care, the apartment combines old-world charm with parquet flooring and high ceilings (3.11 meters), creating a warm, refined atmosphere.
A utility room and a storeroom complete this rare property in the area.
A confidential and charming place to live, offering the privilege of garden-level living, in the immediate vicinity of quality shops and renowned educational establishments.
- Private terrace of 30m², perfect for relaxation.
- Carefully renovated combining old-world charm with modern comfort.
- Sought-after location close to shops and prestigious schools.
Apartment - Paris 16th - Victor Hugo, Passy, Auteuil - 69.39 sqm - 2 bedrooms
Information on the risks to which this property is exposed is available on the Géorisques website :
Ref : 5817JASPAS - Date : 26/02/2026
FEATURES
DETAILS
ENERGY DIAGNOSIS
LOCATION
CONTACT US
INFORMATION REQUEST
Request more information from JUNOT JASMIN AUTEUIL.























