Villa Vence - 180m²
06140 - Vence
DESCRIPTIF
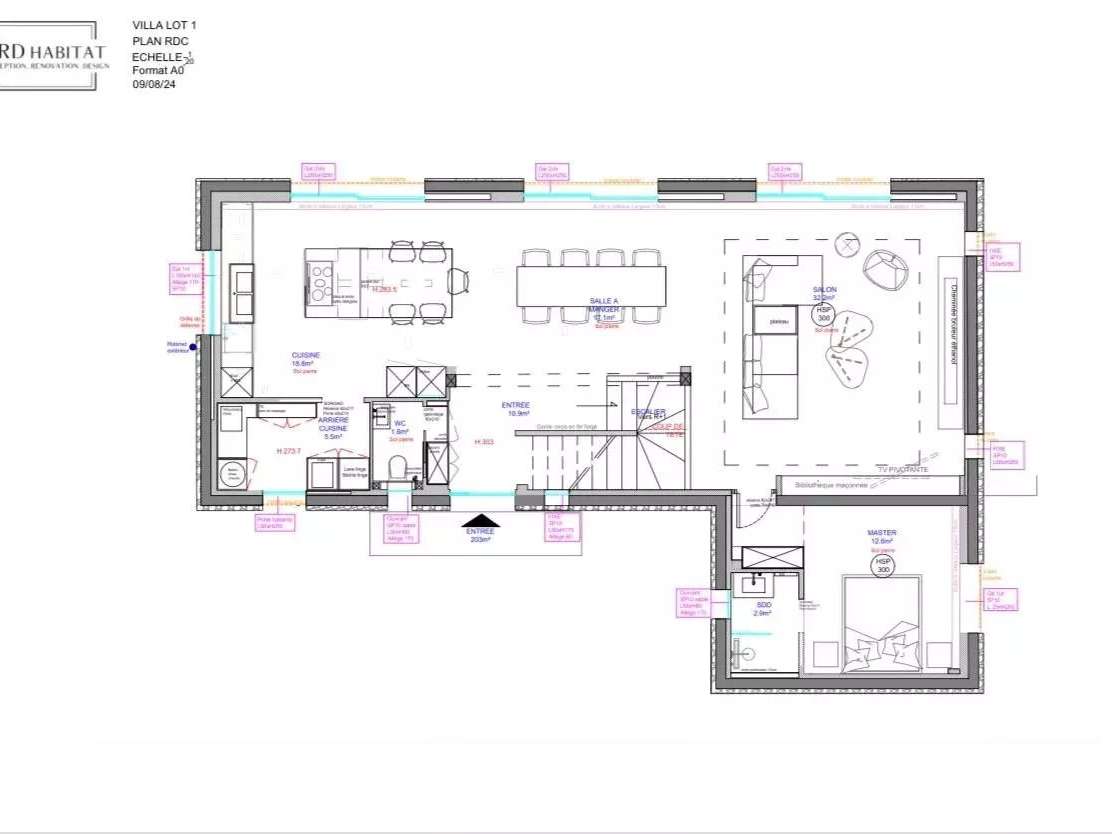
Villa Arthemis – Charme provençal et élégance contemporaineConstruite sur un terrain de 1 215 m² orienté plein sud, la Villa Arthemis offre environ 180 m² habitables dans une ambiance à la fois chaleureuse et raffinée.Cette villa neuve aux frais d’enregistrement réduits séduit par son architecture inspirée des demeures provençales, sublimée par des matériaux nobles et des finitions soignées.Elle se compose d’un vaste séjour baigné de lumière avec cuisine ouverte entièrement équipée, s’ouvrant sur une grande terrasse face à la piscine de 12 mètres et au jardin paysager.La villa compte quatre suites, dont une master avec dressing et salle de bains, offrant à chacun confort et intimité.Les pierres régionales, les bois naturels et les teintes douces créent une atmosphère apaisante, en parfaite harmonie avec la nature environnante.
L’équilibre entre charme traditionnel et lignes contemporaines confère à cette maison un caractère unique.Idéalement située au cœur de l’un des plus beaux villages de France, réputé pour ses galeries d’art, sa gastronomie, ses rues pavées et ses façades fleuries, la Villa Arthemis incarne l’art de vivre provençal dans toute sa splendeur.
- Vaste séjour lumineux avec cuisine ouverte entièrement équipée.
- Quatre suites, dont une master suite avec dressing.
Vente luxueuse villa neuve Vence
Les informations sur les risques auxquels ce bien est exposé sont disponibles sur le site Géorisques :
Réf : 6217 - Date : 28/11/2025
LES ATOUTS
CARACTÉRISTIQUES
DIAGNOSTICS ENERGETIQUES
LOCALISATION
NOUS CONTACTER
DEMANDE D'INFORMATIONS
Demander plus d’informations à Vizcaya.



























