Maison Montreuil
93100 - Montreuil
DESCRIPTIF
MONTREUIL CENTRE VILLE..
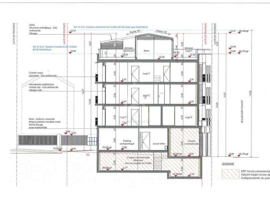
A proximité de la croix de Chavaux, des transports et des commerces, et édifié sur une parcelle de 239m², un ensemble immobilier sur deux étage (PC 500m²) à réhabiliter ou à démolir pour reconstruire.
Ce bien destiné à des professionnels ou promoteurs, est rare sur le secteur.
Il bénéficie actuellement de plusieurs entrées.
Plusieurs aménagements sont possibles : Appartements, bureaux, entrepôts ou lofts.
Les locaux offrent l'ensemble des prestations attendues par les utilisateurs, dans un environnement pratique et facilement accessible.
Espace de stockage Pleine Propriété.
Permis de construire délivré et déjà obtenu.
Attestation de non recourt délivrée.
Hebergement Hotelier Possible.
Opportunité rare sur le secteur.
Contactez votre Agent AXO - L'immobilier Actif au 024139..., Carlo SCHIRONE Négociateur Immobilier Salarié.
Plus d'informations sur (réf.
85024139...).
Honoraires à la charge du vendeur.
Les informations sur les risques auxquels ce bien est exposé sont disponibles sur le site Géorisques : https://www.georisques.gouv.fr/
- Emplacement central à Montreuil, proche transports et commerces.
- Permis de construire obtenu pour de nombreuses possibilités d'aménagement.
Immeuble
Réf : 85002124764 - Date : 31/03/2026
CARACTÉRISTIQUES
DIAGNOSTICS ENERGETIQUES
LOCALISATION
NOUS CONTACTER
DEMANDE D'INFORMATIONS
Demander plus d’informations à AXO L'immobilier Actif.















