Maison Hem - 5 chambres - 263m²
59510 - Hem
DESCRIPTIF
Superbe maison individuelle située dans un quartier calme, verdoyant et recherché de HEM.
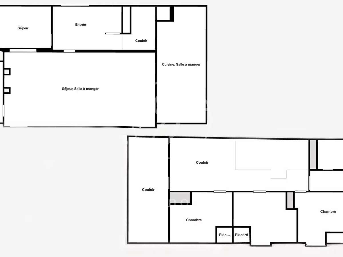
Dès votre arrivée, vous serez charmé par un vaste hall d’entrée qui mène à un salon/salle à manger de 50 m², baigné de lumière grâce à ses grandes ouvertures.
Son orientation sud-ouest, offre une belle luminosité tout au long de la journée.
Pour les passionnés, une spacieuse cuisine entièrement équipée, avec son espace repas, vous permettra de partager des moments conviviaux en famille ou entre amis.Le rez-de-chaussée abrite également une magnifique suite parentale (avec un dressing et une salle de douche privative), un bureau, parfait pour travailler dans un cadre paisible et des WC séparés.Un élégant escalier vous conduit à l’étage, où vous découvrirez quatre chambres lumineuses, chacune dotée de placards intégrés.
Vous y trouverez également une salle de bain moderne et des WC séparés.À l’extérieur, côté sud, une terrasse de 80 m² vous invite à la détente, entourée d’une pelouse parfaitement entretenue et sans vis-à-vis, un véritable havre de paix pour profiter de vos soirées ou de vos moments de repos dominicaux.L’entrée principale de la propriété est dotée de quatre places de parking, tandis qu’un grand garage en sous-sol offre quatre autres places de stationnement.
Vous y trouverez aussi un espace de rangement supplémentaire, ainsi qu’une buanderie.Cette maison allie confort, matériaux de qualité, modernité, espace et luminosité, offrant un cadre de vie agréable et fonctionnel.
Une véritable opportunité à découvrir sans tarder.
- Spacieuse cuisine équipée pour moments conviviaux.
- Terrasse de 80 m² sans vis-à-vis, parfait pour se détendre.
Hem - CLEMENCEAU - Maison à vendre - 7 pièces - 21
Les informations sur les risques auxquels ce bien est exposé sont disponibles sur le site Géorisques :
Réf : 623JLICBA - Date : 14/03/2026
LES ATOUTS
CARACTÉRISTIQUES
DIAGNOSTICS ENERGETIQUES
LOCALISATION
NOUS CONTACTER
DEMANDE D'INFORMATIONS
Demander plus d’informations à JUNOT LILLE.
























