Maison Anglet - 4 chambres - 154m²
64600 - Anglet
DESCRIPTIF
VIVEZ, VIBREZ Façon californienne.
À la française.
Au cur du très recherché quartier des Cinq Cantons, une adresse rare s'apprête à voir le jour.
Une résidence confidentielle, sécurisée, pensée comme un domaine privé.
Un lieu où l'architecture contemporaine dialogue avec l'esprit basque.
Un projet haut de gamme dont la livraison est prévue au 4ème trimestre 2027.
Sur 18 villas seulement, 7 sont déjà réservées.
Ici, il ne s'agit pas simplement d'habiter.
Il s'agit d'adopter un art de vivre.
Le Pays Basque Un art de vivre entre terre et océan Entre la majesté des Pyrénées et les rouleaux de l'Atlantique, la Côte Basque déploie une nature généreuse, une culture vibrante et un patrimoine préservé.
Terre d'émotions et de traditions, elle séduit par son identité forte, son excellence gastronomique, sa convivialité et cette douceur de vivre unique.
À Anglet, l'équilibre est parfait.
Avec ses 11 plages, ses 2 golfs, ses kilomètres de pistes cyclables et ses vastes espaces naturels, la ville attire autant les actifs exigeants que les familles et les résidents secondaires en quête d'authenticité sans renoncer au dynamisme.
Les Cinq Cantons incarnent cette dualité : un cur commerçant vivant, une atmosphère de village, et l'océan à quelques minutes.
Une adresse stratégique et préservée À quelques pas des Halles des Cinq Cantons, à proximité immédiate des établissements scolaires réputés, des golfs et des plages, la résidence bénéficie d'un emplacement exceptionnel.
5 min à pied des commerces et lignes de bus 15 min des centres-villes de Bayonne et Biarritz 8 min des autoroutes A63 et A64 8 min de l'aéroport 12 min des gares 3 min à vélo des plages et golfs 10 min de la Vélodyssée Tout est accessible.
Et pourtant, le domaine reste en retrait, protégé, confidentiel.
Un domaine privé et sécurisé Pensé comme un petit domaine moderne, familial et chic, l'ensemble est entièrement clos et sécurisé.
Accès contrôlé, vidéophone couleur, garages fermés selon villas, domotique intégrée, environnement arboré Dans un contexte où la sécurité est devenue un critère déterminant pour les acquéreurs, cette résidence offre ce que recherchent aujourd'hui les clients exigeants : Sérénité.
Contrôle.
Intimité.
Un esprit résidence privée à l'américaine, avec l'élégance française.
Une architecture de renom Les villas ont été conçues par des architectes reconnus pour leur maîtrise des volumes et de la lumière.
Les maisons s'inspirent de l'architecture traditionnelle locale tout en intégrant des lignes contemporaines et des ouvertures généreuses.
Chaque villa est tournée vers la lumière et la vie dedans-dehors, grâce à un travail précis sur les orientations, les perspectives et la végétation environnante.
Un intérieur pensé comme une uvre Les espaces intérieurs dévoilent une ambiance élégante où matériaux nobles, teintes harmonieuses et finitions soignées s'associent pour créer un cadre de vie raffiné.
La recherche permanente de l'équilibre parfait entre confort, fonctionnalité, design intemporel et atmosphère chaleureuse.
L'intérieur s'épanouit dans une harmonie subtile où chaque détail raconte l'essence d'un art de vivre intemporel.
Beiges lumineux, nuances terracotta, bois clair.
Fibres naturelles, pierre douce, matières brutes.
Ici, la simplicité devient sophistication.
Un souffle plus contemporain traverse également certains espaces : vert émeraude, gris ardoise, noir graphique, marbre clair et lignes architecturales précises.
Un luxe sans ostentation.
Un raffinement assumé.
Une atmosphère à la fois urbaine, chaleureuse et profondément intemporelle.
Des prestations haut de gamme Parquet ou carrelage grand format selon villa Volets roulants électriques centralisés Bibliothèques, dressings et placards aménagés WC suspendus Robinetterie haut de gamme Bac à douche extra plat avec niche intégrée Sèche-serviettes mural Domotique complète (éclairage, volets ) Menuiseries aluminium double vitrage Chauffage et rafraîchissement intégrés Piscine (chauffée pour certaines villas) avec rideau immergé Douche extérieure Terrasses en dalles céramiques ou bois Garages fermés et carrelés pour certaines villas Chaque détail a été pensé pour répondre aux attentes d'une clientèle exigeante, en quête de qualité durable et de valeur patrimoniale.
Une signature paysagère immersive Le projet paysager recrée une atmosphère de clairière habitée.
Chênes verts, fougères, hortensias, lauriers Chaque villa s'intègre dans une composition douce et naturelle.
Le végétal devient une enveloppe protectrice.
Une respiration permanente.
Un luxe discret, profondément apaisant.
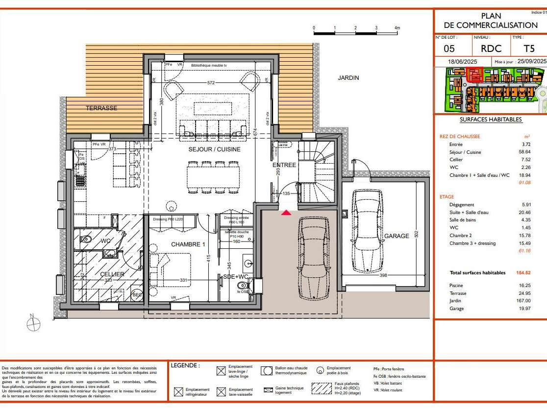
Présentation de la Villa 5 Villa contemporaine familiale avec piscine Surface habitable : 154,52 m² Terrain : 402 m² Piscine : 16,25 m² Terrasse : 24,95 m² Jardin : 167 m² Garage : 19,97 m² 1 car-port Rez-de-chaussée Entrée : 3,72 m² Séjour / cuisine : 58,64 m² Cellier : 7,52 m² WC : 2,26 m² Chambre 1 + salle d'eau / WC : 18,94 m² Un espace de vie lumineux, ouvert sur la terrasse et la piscine, parfaitement exposé pour profiter de la lumière naturelle.
Étage 61,16 m² Dégagement : 5,91 m² Suite + salle d'eau : 20,46 m² Salle de bain : 4,35 m² WC : 1,45 m² Chambre 2 : 15,78 m² Chambre 3 + dressing : 15,49 m² Une opportunité stratégique Quartier ultra recherché Résidence sécurisée et confidentielle Architecture premium Livraison 4ème trimestre 2027 7 lots déjà réservés sur 18 Valorisation patrimoniale forte Dossier confidentiel sur demande Plans détaillés Plan de masse du domaine sécurisé Visuels HD Notice descriptive complète Grille tarifaire Modalités de réservation Visite 3D de la résidence et des villas Présentation vidéo Brochures commerciales détaillées Ce projet ne se consulte pas.
Il se découvre.
Et il se réserve.
Contactez-moi directement pour recevoir le dossier confidentiel et organiser une présentation privée.
Villa contemporaine avec piscine Description détaillée Cinq Cantons / Chiberta
Les informations sur les risques auxquels ce bien est exposé sont disponibles sur le site Géorisques :
Réf : 74359C10CD874FAB - Date : 10/02/2026
LES ATOUTS
CARACTÉRISTIQUES
DIAGNOSTICS ENERGETIQUES
LOCALISATION
NOUS CONTACTER
DEMANDE D'INFORMATIONS
Demander plus d’informations à SELECTION HABITAT.










