Appartement Soorts-Hossegor - 4 chambres - 187m²
40150 - Soorts-Hossegor
DESCRIPTIF
À seulement deux pas de la plage, au coeur d'une copropriété de 2 Appartements (2025 ) et au porte d'un art de vivre unique.
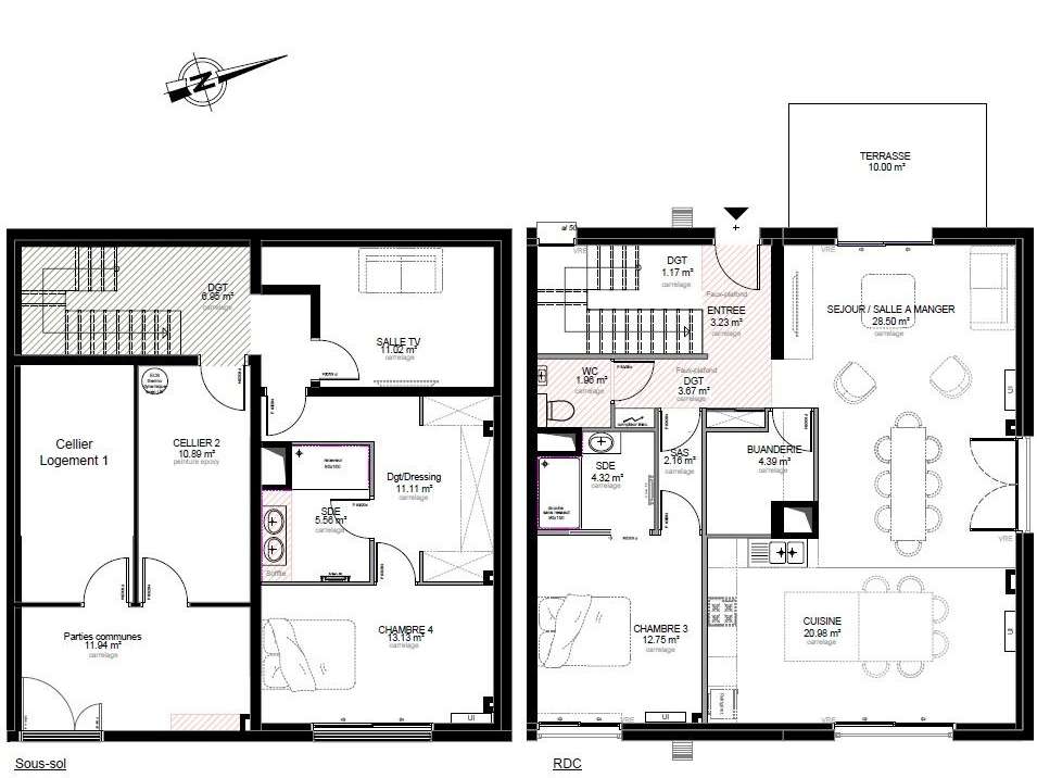
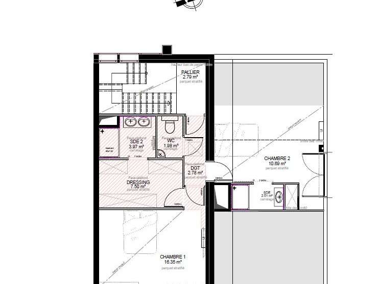
Avec ses 187 m2 de type T5, Il se compose d'une pièce de vie de 50 m2, cuisine entièrement aménagée et équipée, 4 chambres dont 3 suites parentales, 3 salles de bains, 2 dressings, salle TV, buanderie, cellier de 10.89 m2, 2 places de parking.
Il conjugue confort, raffinement, volumes baignés de lumière et prestations haut de gamme, .
Son jardin privatif de 300 m² et sa terrasse de 10 m² prolongent les espaces intérieurs vers l'extérieur, pour des moments privilégiés au rythme des vagues.
Une adresse rare en première ligne, alliant cadre idyllique et placement immobilier d'exception.
RT 2020 + dommages et ouvrages + pompe à chaleur ( climatisation réversible ).
Contactez Sophie MENAUTHON Tél : 06 25 42... ou Camille PECASTAING LESCARBOURA Tél : 06 25 42... EQUINOXES IMMOBILIER A biens de Prestige Landes et Pays Basque Plus d'informations (réf.
406 25 42...) Honoraires à la charge du vendeur Prix moyens des énergies indexés sur les années 2023 2024 2025 (abonnement compris).
Montant estimé des dépenses annuelles d'énergie pour un usage standard : entre 1 500 et 2 500 par an.
Les informations sur les risques auxquels ce bien est exposé sont disponibles sur le site Géorisques : https://www.georisques.gouv.fr
- Emplacement privilégié à deux pas de la plage.
- Espace de vie spacieux de 50 m² avec lumière naturelle.
A 2 PAS DE LA PLAGE APPARTEMENT ( 2025 ) DE TYPE T5 DE 187 M2
Réf : 4000927319 - Date : 03/03/2026
LES ATOUTS
CARACTÉRISTIQUES
DIAGNOSTICS ENERGETIQUES
LOCALISATION
NOUS CONTACTER
EQUINOXES IMMOBILIER
LES HAUTS DE MARIBAT 495 AVENUE DES BUCHERONS
40150 SOORTS-HOSSEGOR
DEMANDE D'INFORMATIONS
Demander plus d’informations à EQUINOXES IMMOBILIER.












