Appartement Sète - 3 chambres - 91m²
34200 - Sète
DESCRIPTIF
Découvrez cet appartement de 4 pièces de 90 m², un véritable cocon baigné de lumière, pensé pour offrir confort, espace et une qualité de vie rare.
Dès l'entrée, l'ambiance se révèle chaleureuse et élégante, portée par des volumes harmonieux et une belle luminosité.
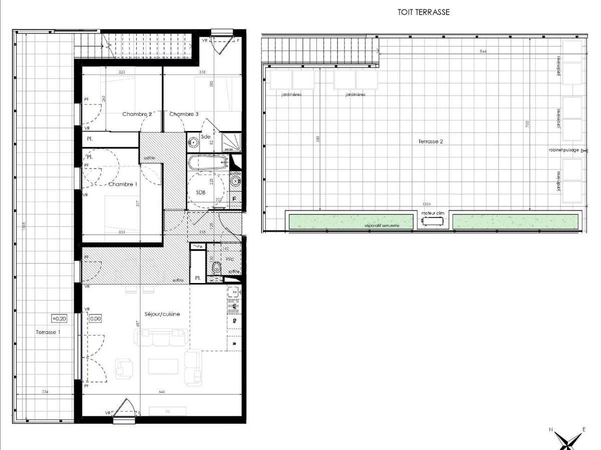
L'espace nuit se compose de trois chambres, dont une superbe suite parentale dotée de sa salle d'eau attenante, conçue comme un lieu intime et raffiné.
Les deux autres chambres, tout aussi agréables, bénéficient d'un accès fluide vers l'extérieur, tout comme le salon.
En effet, le séjour et deux des chambres s'ouvrent sur une première terrasse de 37 m².
Véritable pièce de vie à ciel ouvert, elle prolonge magnifiquement l'intérieur et invite à profiter du soleil tout au long de la journée.
Depuis cet espace extérieur, la vue se déploie face aux étangs de Sète, offrant un tableau naturel changeant et apaisant.
Mais ce n'est pas tout.
À l'étage, un toit-terrasse exceptionnel de 87 m² vient parfaire ce bien d'exception.
Aménagé avec des jardinières, il devient un lieu de détente privilégié, un refuge suspendu entre ciel et horizon, idéal pour des soirées douces, des moments de convivialité ou simplement pour savourer la quiétude environnante.
Un appartement rare, lumineux et tourné vers la nature, où chaque espace semble avoir été pensé pour offrir une expérience de vie unique.
- Superbe toit-terrasse de 87m² offrant une vue imprenable sur les étangs.
- Trois chambres lumineuses avec accès direct aux espaces extérieurs.
MAGNIFIQUE APPARTEMENT DE 90M² AVEC TOIT TERRASSE DE 87M² A SETE
Les informations sur les risques auxquels ce bien est exposé sont disponibles sur le site Géorisques :
Réf : 345336702 - Date : 31/01/2026
LES ATOUTS
CARACTÉRISTIQUES
DIAGNOSTICS ENERGETIQUES
LOCALISATION
NOUS CONTACTER
DEMANDE D'INFORMATIONS
Demander plus d’informations à Argence & Argence Immobilier.







